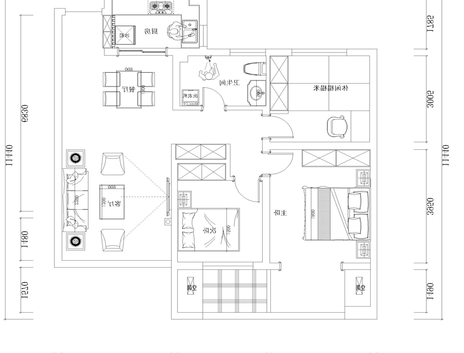
90㎡二居现代简约风格佳源都市
本案的设计风格为现代简约,现代简约风格是以简约为主的装修风格。简约风格的特色是将设计的元素、色彩、照明、原材料简化到最少的程度,但对色彩、材料的质感要求很高。因此,简约的空间设计通常非常含蓄,往往能达到以少胜多、以简胜繁的效果。
现代风格外形简洁、功能强,强调室内空间形态和物检的单一性、抽象性。现代简约风格,顾名思义,就是让所有的细节看上去都是非常简洁的。装修中极简便是让空间看上去非常简洁,大气。装饰的部位要少,但是在颜色和布局上,在装修材料的选择配搭上需要费很大的劲,这是一种境界,不是普通设计师能够设计出来的。现代简约风格的装修风格迎合了年轻人的喜爱,都市忙碌生活,早已经让我们烦腻了花天酒地,灯红酒绿,我们更喜欢的一个安静,祥和,看上去明朗宽敞舒适的家,来消除工作的疲惫,忘却都市的喧闹。这也是现在流行的装修风格之一:现代简约风格。
简约并不是缺乏设计要素,它是一种更高层次的创作境界。在室内设计方面,不是要放弃原有建筑空间的规矩和朴实,去对建筑载体进行任意装饰。而是在设计上更加强 调功能,强调结构和形式的完整,更追求材料、技术、空间的表现深度与精确。用简约的手法进行室内创造,它更需要设计师具有较高的设计素养与实践经验。需要设计师深 入生活、反复思考、仔细推敲、精心提炼,运用最少的设计语言,表达出最深的设计内 涵。删繁就简,去伪存真,以色彩的高度凝练和造型的极度简洁,在满足功能需要的前提下,将空间、人及物进行合理精致的组合,用最洗练的笔触,描绘出最丰富动人的空 间效果,这是设计艺术的最高境界。










京公安网备11010502040911