91㎡二居现代简约风格嘉凯城时代城
发布时间:
2015年07月24日
小区:嘉凯城时代城 面积:91㎡ 户型:二居 风格:现代简约风格
设计说明
随着人们生活质量的不断提高,对我们生活环境的要求也就越来越高,对于室内设计方面也会有很高的要求。我的作品是一会年轻的上班族,用真实的方式来表达真正的感受与想法,以美观,实用,简约,大方,将现代都市青年的游离生活展现的淋漓尽致,并且希望在都市里享受午后的一里阳光,忘却工作生活的压力。
这是我为我的年轻的白领业主做的整套设计,本户型对各个空间都有明确的分割,考虑到墙体的承重和工期,对于墙体没有做特别的改动。面对吵闹的都市生活,一处能让人完全放松的生活空间是每一个人心中的渴望,也是本方案的主导方向。所以,空间的简洁,温馨,通透,缓解业主一天疲惫的要点,利用干净利落的手法将业主的工作与生活融合在一起。
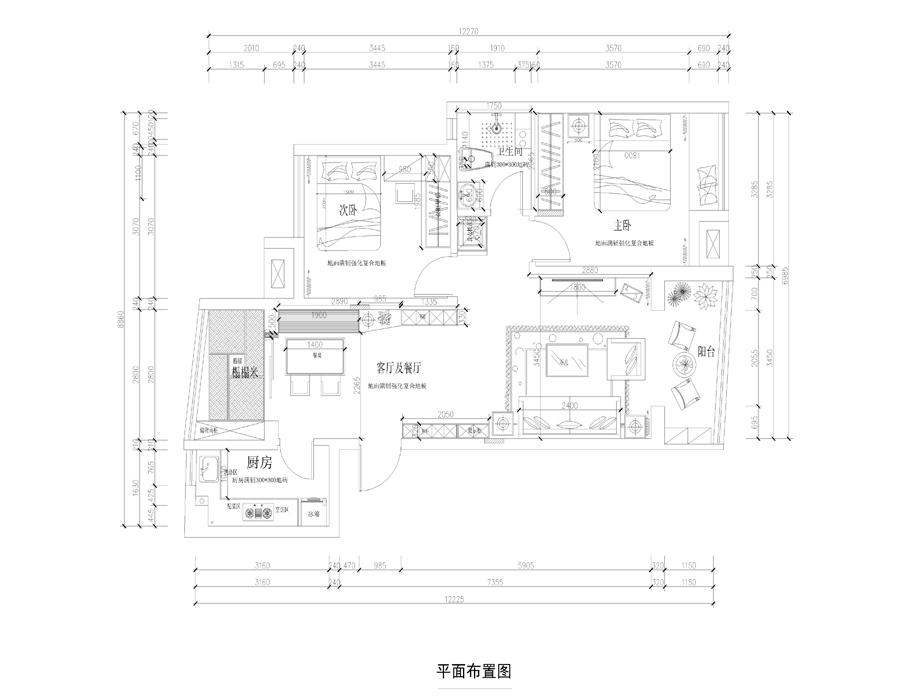
户型图

客厅



餐厅


厨房





京公安网备11010502040911