80㎡二居现代简约风格爱达·九溪
发布时间:
2026年01月08日
小区:爱达·九溪 面积:80㎡ 户型:二居 风格:现代简约风格
设计说明
本方案是爱达九溪设计,现代简约黑白灰配色,黑白灰配色不是冰冷的色块堆砌,而是用克制的灰度调和黑白的锐度,为家装留出呼吸感。摒弃繁复纹样,以不同明度的灰作基底,浅灰铺陈墙面温柔包容,深灰勾勒柜体线条利落,黑白则作为点睛之笔——玄黑的金属拉手、皓白的棉麻窗帘,在灰度空间里碰撞出低调张力。
它适配不同生活节奏,偏爱极简的人可减少色彩占比,让空间更通透;喜欢温馨的人,可加入原木、布艺软装,柔化冷调。这种配色不追逐潮流,而是以中性姿态,承载每一种日常的松弛与自在,于简约中见质感,于克制中藏温度。
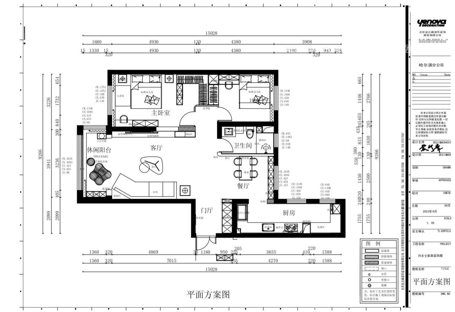
户型图

大厅


客厅

次卧室




衣帽间

厨房

主卧室







京公安网备11010502040911