89㎡二居原木风格金瑞林城
发布时间:
2025年12月27日
小区:金瑞林城 面积:89㎡ 户型:二居 风格:原木风格
设计说明
两室一厅的空间为载体,将原木的温润与奶油色的柔和深度融合,打造兼具实用性与治愈感的居家氛围。墙面选用低饱和奶油白,地面通铺浅橡木纹地板,搭配原木色定制柜体(如玄关柜、餐边柜、卧室衣柜),弱化空间边界感,让小面积更显通透开阔。局部加入浅咖色地毯、藤编灯具、白色陶瓷摆件等软饰,平衡原木的厚重感,让整体空间既保留自然温度,又充满轻盈的奶油质感,适配日常居住的舒适与美观。
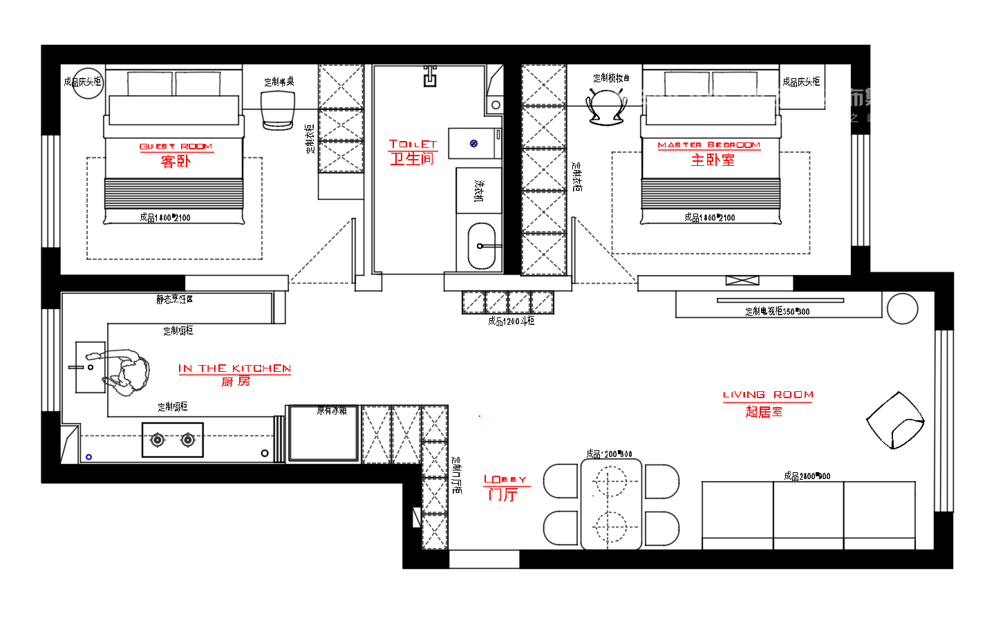
户型图

主卧室


餐厅

玄关

厨房

大厅

客厅



次卧室

卫生间





京公安网备11010502040911