120㎡三居现代简约风格安泰华庭
发布时间:
2025年10月01日
小区:安泰华庭 面积:120㎡ 户型:三居 风格:现代简约风格
设计说明
在凡俗的烟火里,愿以素心,阅来日方长,愿晨昏相依,四季欢喜
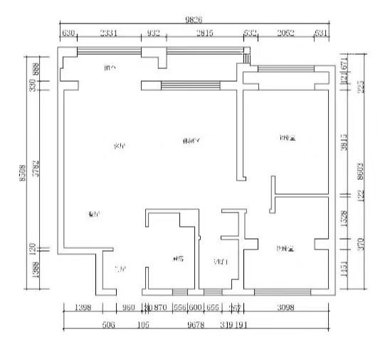
户型图

卫生间

卫生间采用干湿分离设计
衣帽间

衣帽间设计整排衣柜满足收纳
主卧室

主卧室衣柜采用白色
大厅

客厅采用挂画背景




京公安网备11010502040911