117㎡三居现代简约风格旭辉国辰府
发布时间:
2025年09月30日
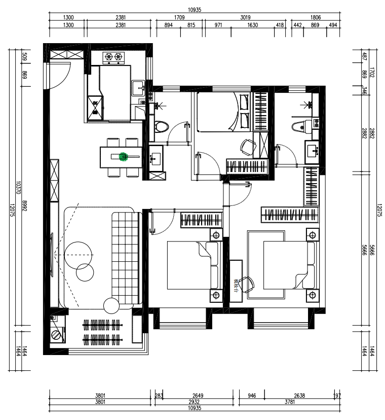
小区:旭辉国辰府 面积:117㎡ 户型:三居 风格:现代简约风格
设计说明
这套家居设计以现代简约风格为基底,融合雅致温馨的氛围营造,通过低饱和度色彩搭配、简洁利落的线条与人性化功能布局,打造出舒适且富有质感的居住空间,诠释当代人对品质生活的追求。
公共区域采用客餐厨一体化设计,强化空间通透感。客厅以灰白为主调,电视背景墙整合收纳与展示功能,深灰柜体与浅色墙面形成视觉层次;线性灯与点光源交织,让灯光兼具实用性与精致感。餐厅延续整体色调,简洁餐桌搭配质感餐椅,旁侧柜体兼顾收纳与 “咖啡角” 功能,为日常休闲增添便利与仪式感。过渡区域的抽象艺术挂画,以黑白灰肌理丰富视觉,与暗藏灯光的柜体相衬,让走廊成为艺术延伸的载体。
卧室空间聚焦 “舒适休憩” 核心需求,同时兼顾个性化与收纳性。次卧(或书房)采用一体化设计,床、书桌与吊柜有机融合,浅灰与米色的柔和色调搭配充足自然采光,营造出静谧且适合阅读工作的氛围。主卧更显雅致,大面积收纳柜体满足储物需求;床头区域以艺术挂画、造型灯营造氛围,飘窗与针织毯、艺术摆件、绿植等软装搭配,让空间兼具温馨与艺术感;多层次灯光设计(主灯、 bedside 吊灯)更添浪漫松弛感,打造出能卸下疲惫的私享休憩场域。
整体设计秉持 “功能与美学共生” 的理念,通过色彩和谐、布局高效与细节温度,让家不仅是居住空间,更是心灵得以安放的舒适港湾。
户型图

卧室




玄关

客厅





京公安网备11010502040911