111㎡三居中古风格中交锦上
发布时间:
2025年09月30日
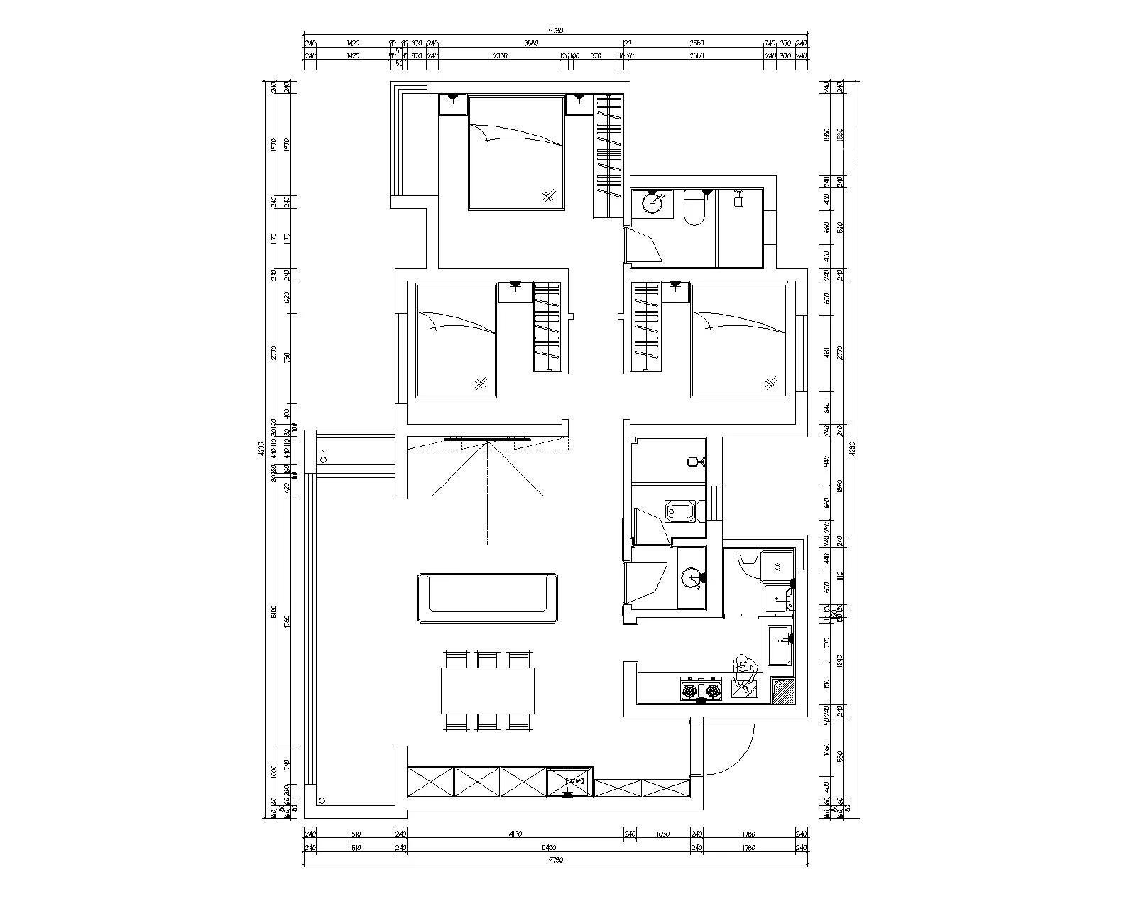
小区:中交锦上 面积:111㎡ 户型:三居 风格:中古风格
设计说明
本客厅设计以现代简约风格为基调,融入复古与自然元素,打造出舒适且富有格调的空间。
在色彩运用上,以柔和的白色为主色调,营造出明亮、通透的氛围,搭配深色的家具与门饰,形成鲜明对比,增添了空间的层次感与视觉焦点。
户型图

次卧室

主卧室

餐厅

客厅






京公安网备11010502040911