375㎡平层现代简约风格雅居乐御宾府
发布时间:
2023年03月23日
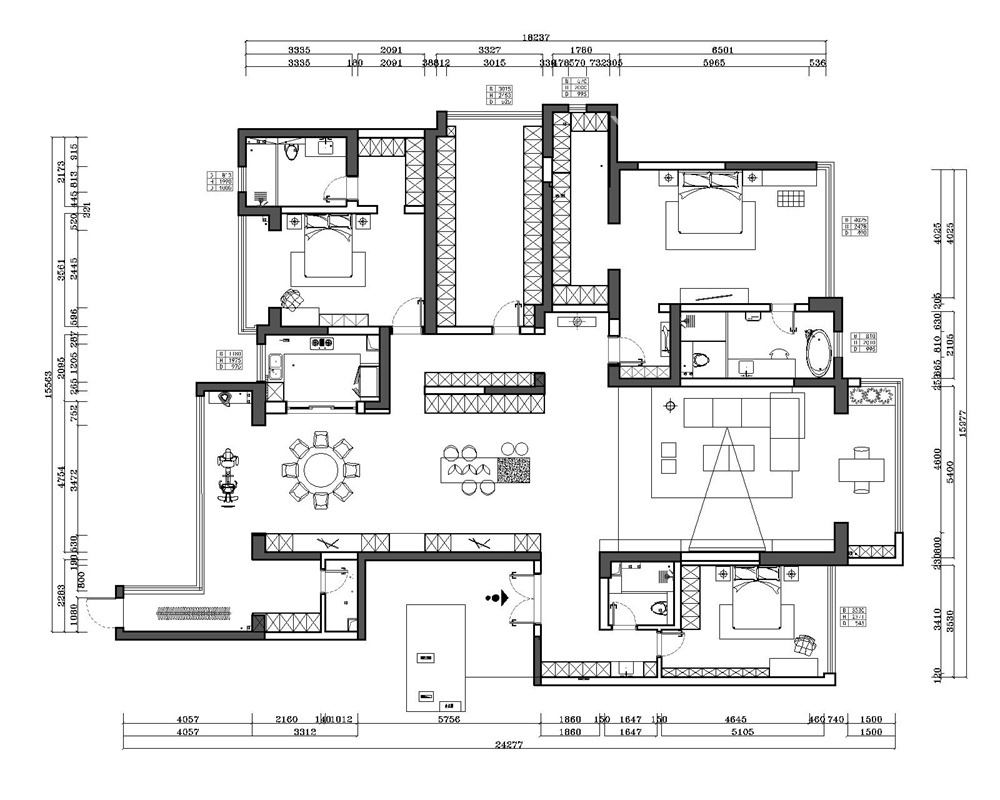
小区:雅居乐御宾府 面积:375㎡ 户型:平层 风格:现代简约风格
设计说明
本案是四室两厅一厨三卫的大平层住宅, 建筑面积大约:375 ㎡ 。根据与业主沟通交流,将本案定为现代简约风格,要稳重大气,跟上现代时尚潮流。居室整体采用中性色调,简约干净,奢而不华。从入户门厅以小景烘衬,无论是水吧区与客厅之间以装饰画过渡,还是沙发背景墙素色造型的以水墨点缀,不单是对简约风格的遵循,也是个性的展示。从功能出发,讲究造型比例适度,利用限度内空间使事物的使用功效发挥到最大作用,既讲究形式美,又无多余装饰。在现代快节奏满负荷的生活下,带给主人转换精神的空间。
户型图


客厅



卧室


玄关





京公安网备11010502040911