130㎡三居现代简约风格奥达文景观园
发布时间:
2022年07月28日
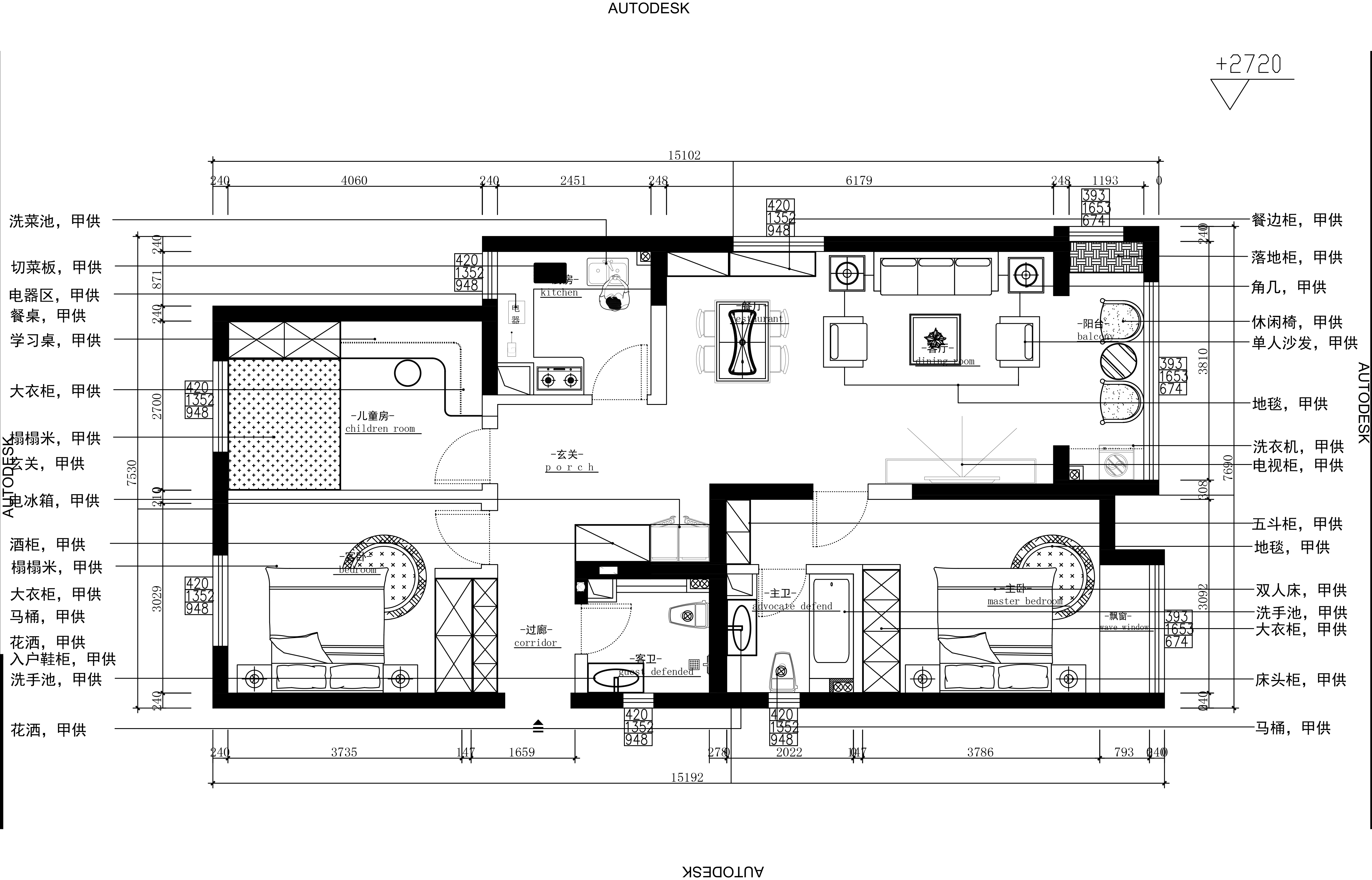
小区:奥达文景观园 面积:130㎡ 户型:三居 风格:现代简约风格
设计说明
这是一套3室的温馨雅居,客户是在政府单位上班。整体以极简轻奢元素为主,营造温馨浓郁的家庭居住空间。
客厅电视墙以整面整体石材搭配黑色金属条,让整个入户入眼之处更加层次分明,让空间延伸感更强。沙发背景壁布挂画点缀,提升空间质感。
客餐厅三重叠级吊顶,目光所及,层次分明。
配饰素雅为主,家居布艺为主,更加注重舒适。
户型图

卫生间

玄关

餐厅

客厅





京公安网备11010502040911