114㎡三居现代简约风格中海寰宇天下
                  发布时间:
                  2021年09月30日
                
 小区:中海寰宇天下 面积:114㎡ 户型:三居 风格:现代简约风格
设计说明
 现代主义建筑的理念为“少即是多”,也可以用于室内设计,空间结构简洁明了,简单明了的空间可以让人远离喧嚣回归本心,掬半盏清茶的闲适,享受家的静怡和舒适。整体空间与材质运用了中色调的搭配,如沙发背景墙运用的是硬朗搭配布艺沙发的柔软,一硬一柔
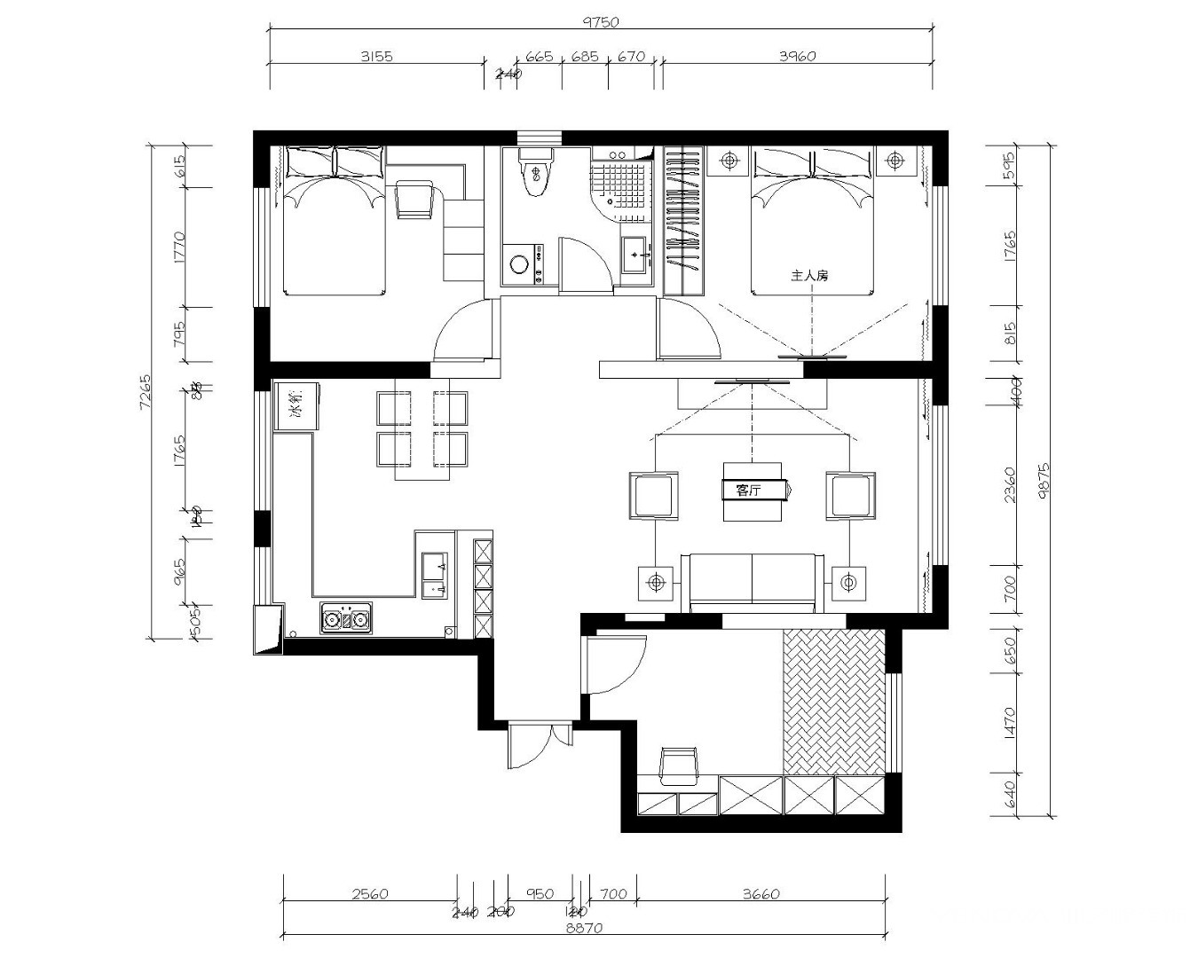
户型图
 
卫生间
 
卧室
 
玄关
 

客厅
 




书房
 
餐厅
 
儿童房
 

 
 


 京公安网备11010502040911
京公安网备11010502040911