265㎡四居现代简约风格华侨城天鹅堡
发布时间:
2021年09月17日
小区:华侨城天鹅堡 面积:265㎡ 户型:四居 风格:现代简约风格
设计说明
精致的软装设计与巧妙细节的设计烘托出贵气讲究的家居氛围,利用瓷砖装饰墙面,利用板材装饰顶面,设计的心思肉眼可见,使的客厅的设计感扑面而来。
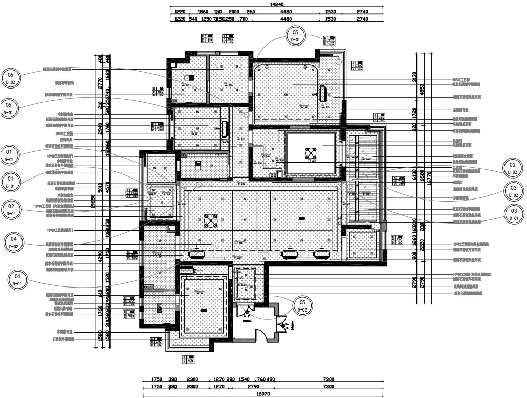
户型图

卫生间

卧室



客厅




衣帽间

休闲区

餐厅

精致的软装设计与巧妙细节的设计烘托出贵气讲究的家居氛围,利用瓷砖装饰墙面,利用板材装饰顶面,设计的心思肉眼可见,使的客厅的设计感扑面而来。











