112㎡三居现代简约风格龙泉桃花源
发布时间:
2021年09月15日
小区:龙泉桃花源 面积:112㎡ 户型:三居 风格:现代简约风格
设计说明
此户型为四房户型,改成了三房+书房的格局,业主倾向于:现代风格。所以全屋整体色调以灰色为主,黑色边框为点缀色,冷暖搭配无疑是最好的搭配,选用木饰面板加金属线条进行装饰营造别样精致生活。
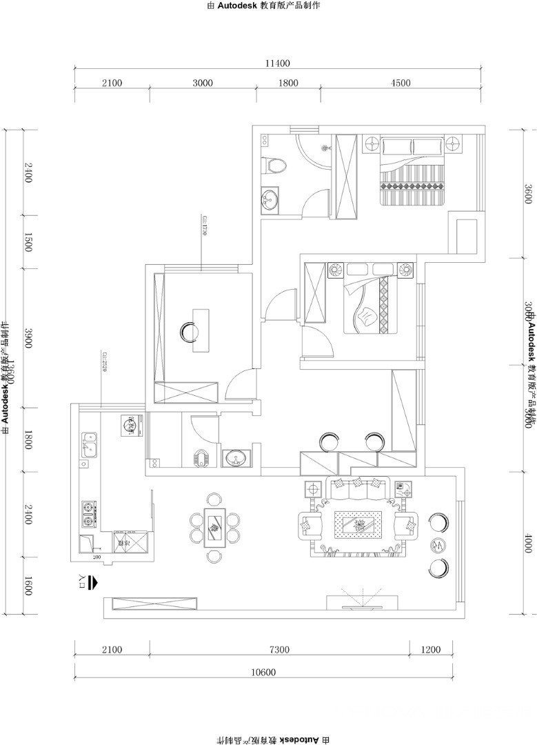
户型图

卧室


客厅


厨房

此户型为四房户型,改成了三房+书房的格局,业主倾向于:现代风格。所以全屋整体色调以灰色为主,黑色边框为点缀色,冷暖搭配无疑是最好的搭配,选用木饰面板加金属线条进行装饰营造别样精致生活。





