135㎡三居现代简约风格空军工程大学家属楼
发布时间:
2021年09月09日
小区:空军工程大学家属楼 面积:135㎡ 户型:三居 风格:现代简约风格
设计说明
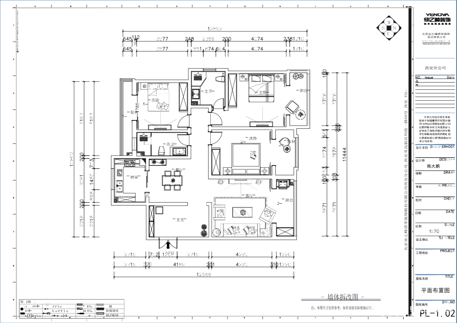
本案为一家四口在一起生活,要求要有三间卧室。墙体合理的小幅度修改,使空间更加协调,做一个主卧俩个次卧,每个房间的阳台做成生活阳台休闲时可以在阳台。
户型图

客厅





餐厅

本案为一家四口在一起生活,要求要有三间卧室。墙体合理的小幅度修改,使空间更加协调,做一个主卧俩个次卧,每个房间的阳台做成生活阳台休闲时可以在阳台。






