140㎡三居现代简约风格建华观园
发布时间:
2021年08月20日
小区:建华观园 面积:140㎡ 户型:三居 风格:现代简约风格
设计说明
空间设计虽然以简约为基础,但加入了很多高品质元素,特别是时尚、现代的空间搭配,将奢华与内涵、舒适与温馨气质相融。
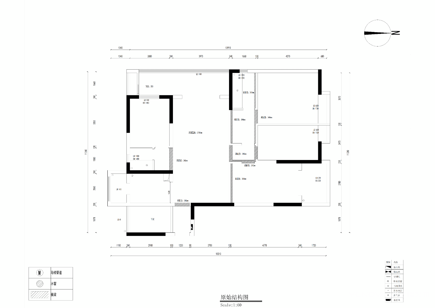
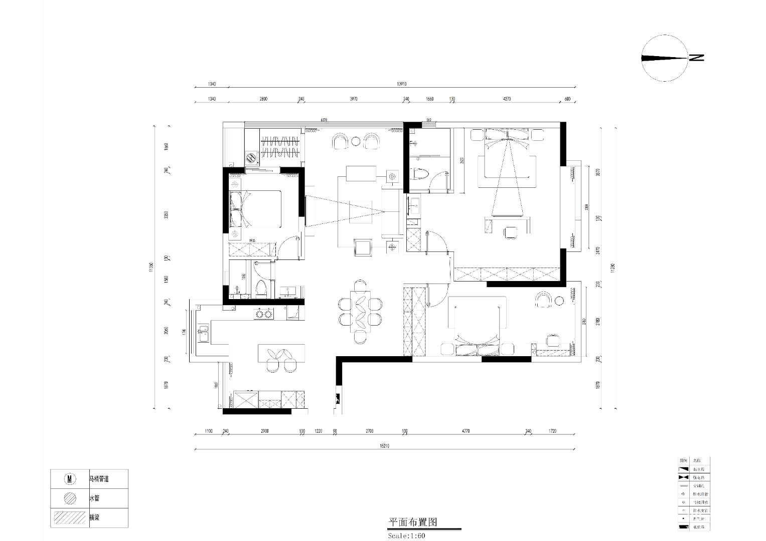
户型图

客厅




厨房



卧室



空间设计虽然以简约为基础,但加入了很多高品质元素,特别是时尚、现代的空间搭配,将奢华与内涵、舒适与温馨气质相融。










