93㎡二居现代简约风格曲江美好时光
发布时间:
2021年08月20日
小区:曲江美好时光 面积:93㎡ 户型:二居 风格:现代简约风格
设计说明
本案采用现代风格设计,现代家具空间,将色彩跳跃出来,大胆而灵活,不但是对现代风格家具的遵循,也是个性的表现
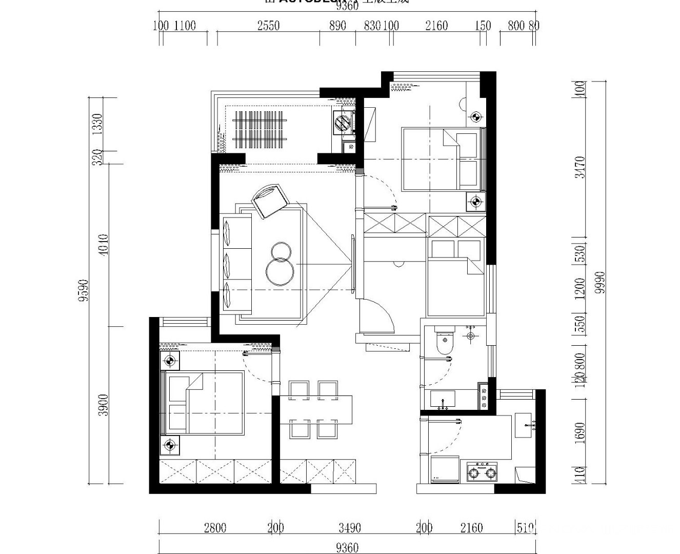
户型图

卧室


餐厅

客厅



本案采用现代风格设计,现代家具空间,将色彩跳跃出来,大胆而灵活,不但是对现代风格家具的遵循,也是个性的表现






