100㎡平层现代简约风格鲁商蓝岸新城
发布时间:
2021年08月19日
小区:鲁商蓝岸新城 面积:100㎡ 户型:平层 风格:现代简约风格
设计说明
本案整个空间格调以温柔的浅色调为主,浅咖色与奶白色的电视柜为空间增添了整体性,同时增加了储物功能,圆润的弧形墙板搭配爱马仕橙成为就餐区的一大亮点,为吃饭这件事增添了乐趣。
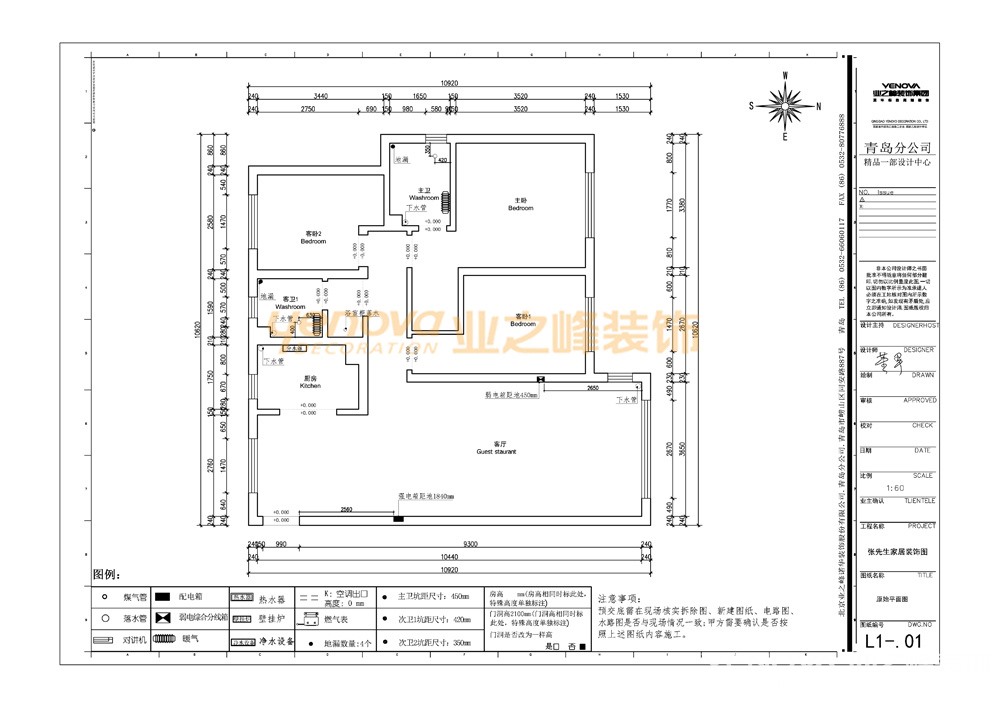
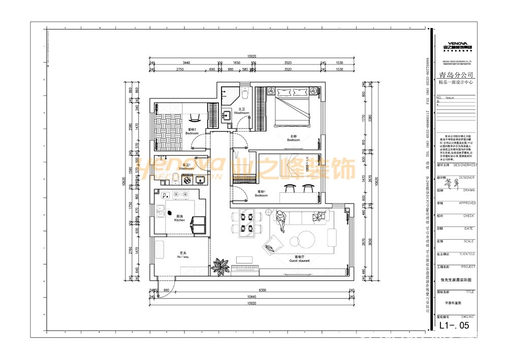
户型图

客厅






玄关

本案整个空间格调以温柔的浅色调为主,浅咖色与奶白色的电视柜为空间增添了整体性,同时增加了储物功能,圆润的弧形墙板搭配爱马仕橙成为就餐区的一大亮点,为吃饭这件事增添了乐趣。







