126㎡三居现代简约风格临空香庭
发布时间:
2021年08月13日
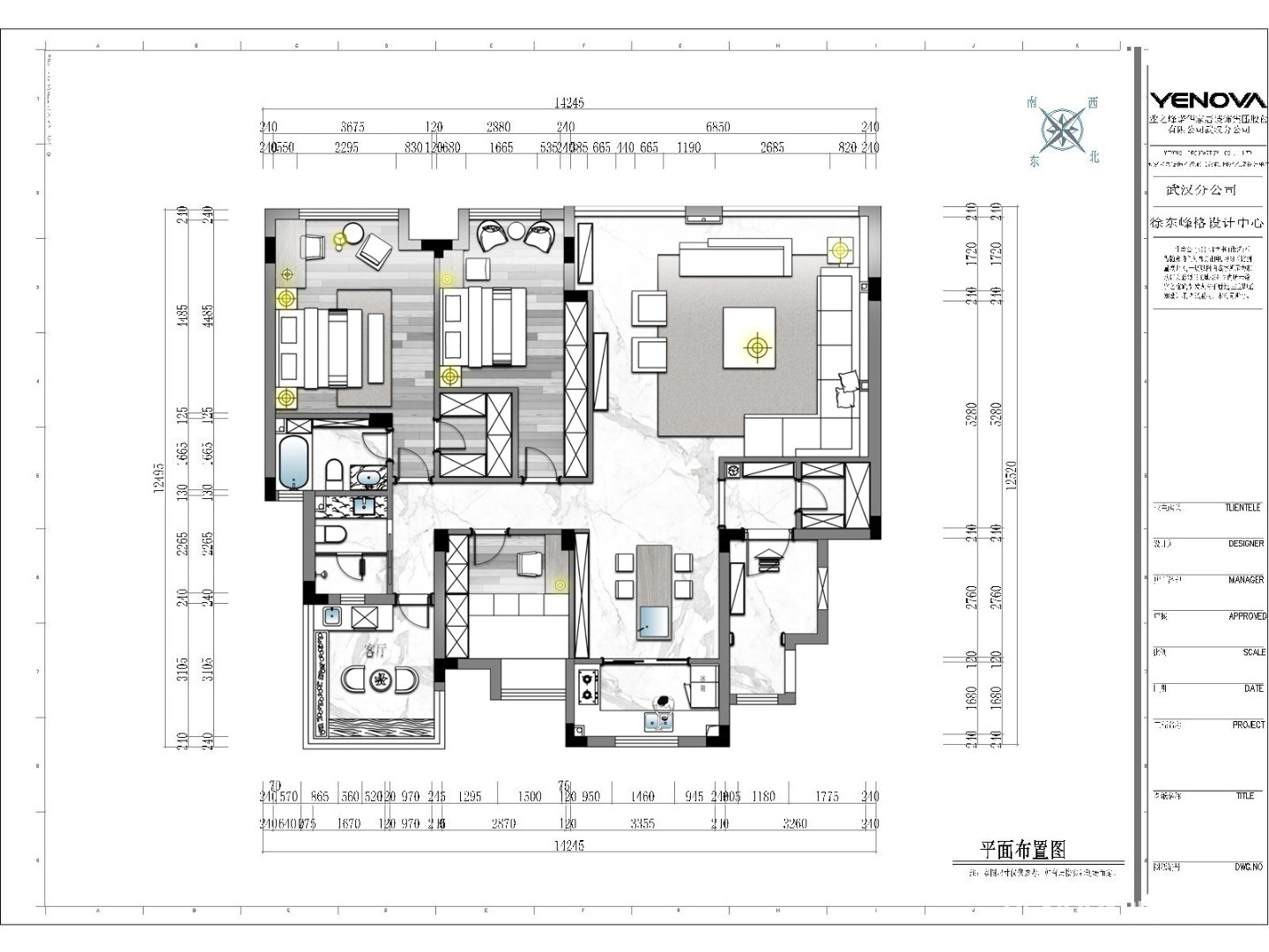
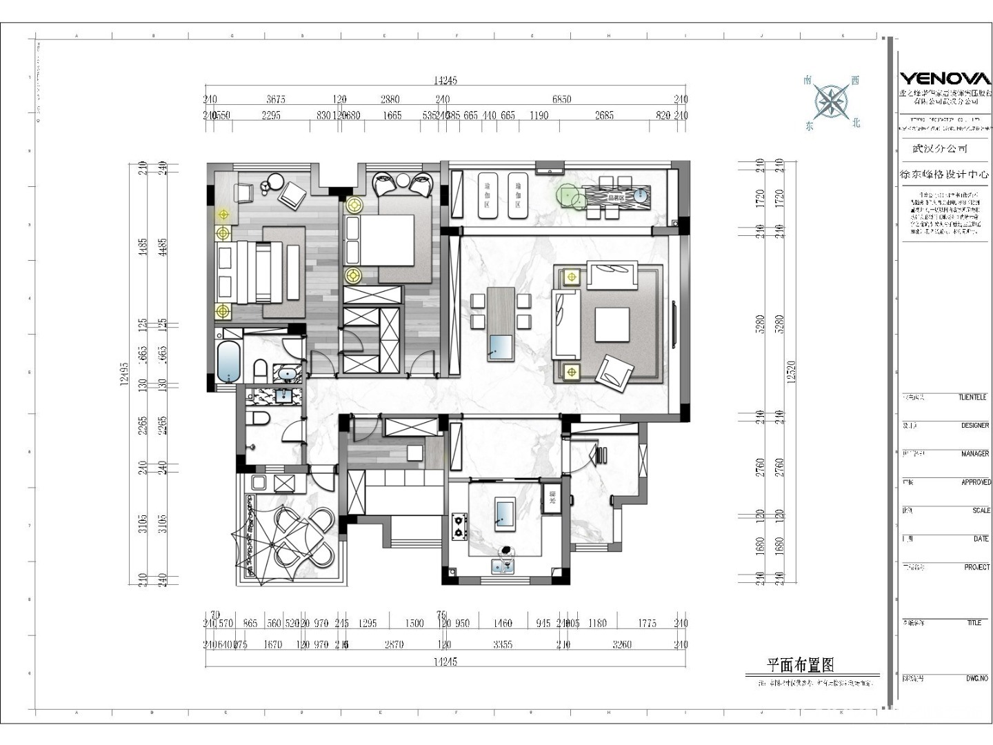
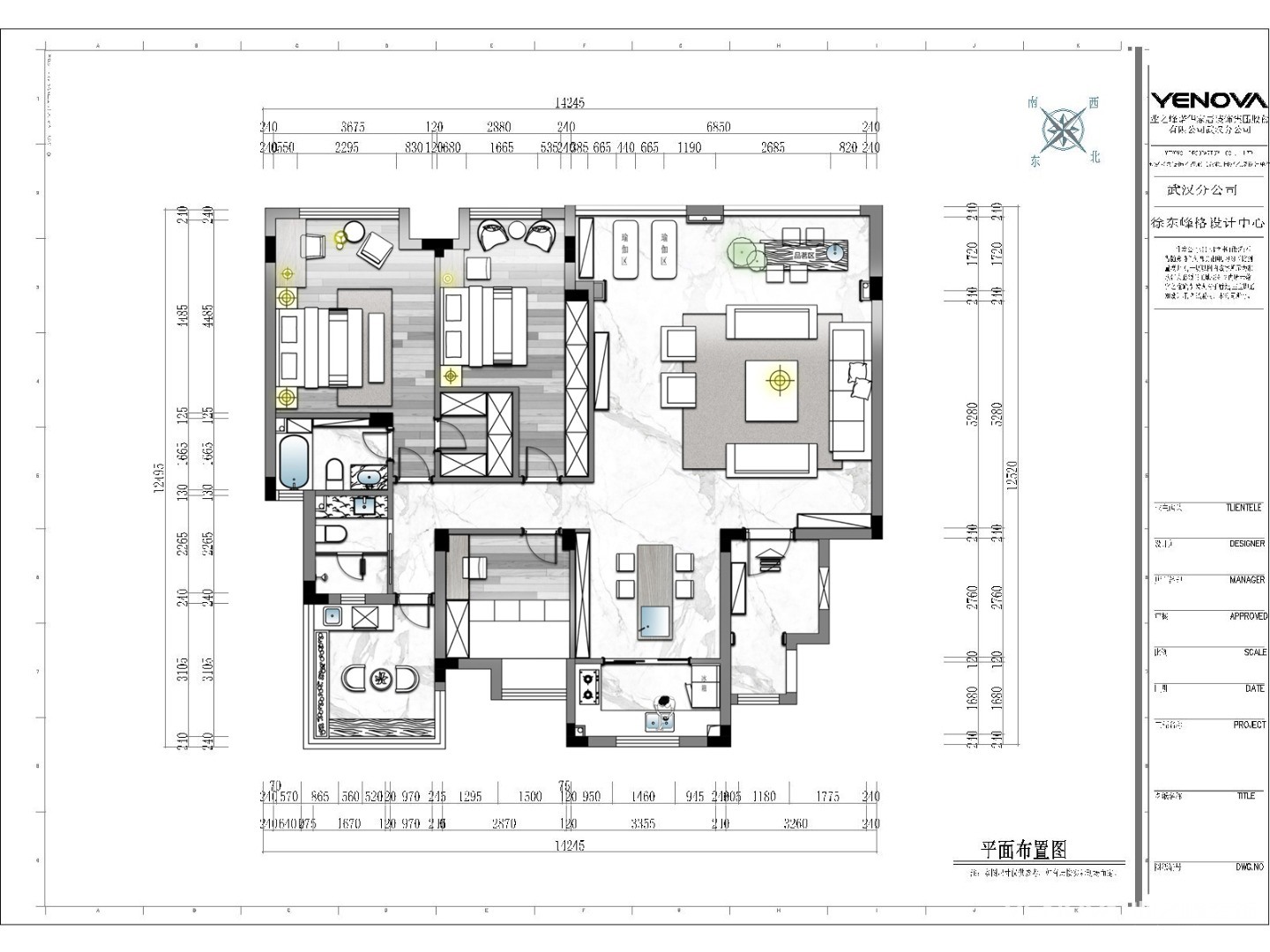
小区:临空香庭 面积:126㎡ 户型:三居 风格:现代简约风格
设计说明
本案业主一家三口,女儿6岁,业主对储物要求比较高,主卧借用了次卧的部分面积,做成独立衣帽间;
次卧借用客厅部分空间拥有一大排衣柜,满足了一家三口的储物需求;书房设计成榻榻米加衣柜组合,
可增加储物空间;阳台放置跑步机等健身机器,可做运动休闲区域,为繁忙的生活增加一点放松空间。
整个空间以杏色墙布为主,少量木色护墙板为辅,整体温馨不失时尚感,配合少量金属材质的灯饰提升
精致奢华感。
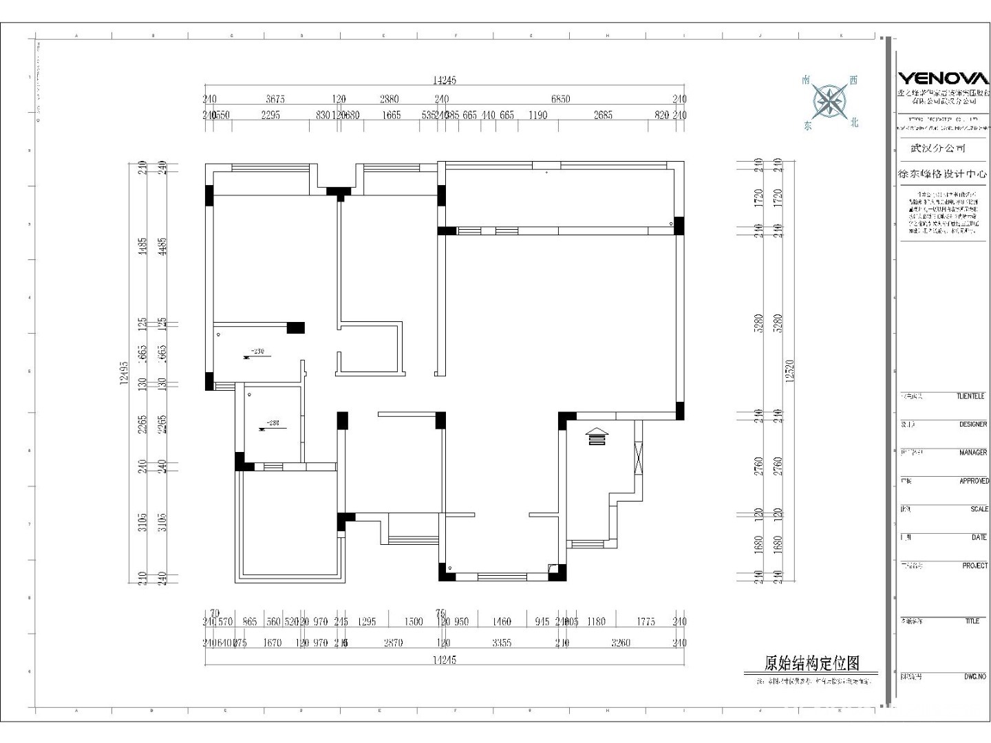
户型图

卧室

客厅










京公安网备11010502040911