140㎡三居现代简约风格碧桂园保利·云禧
发布时间:
2021年08月06日
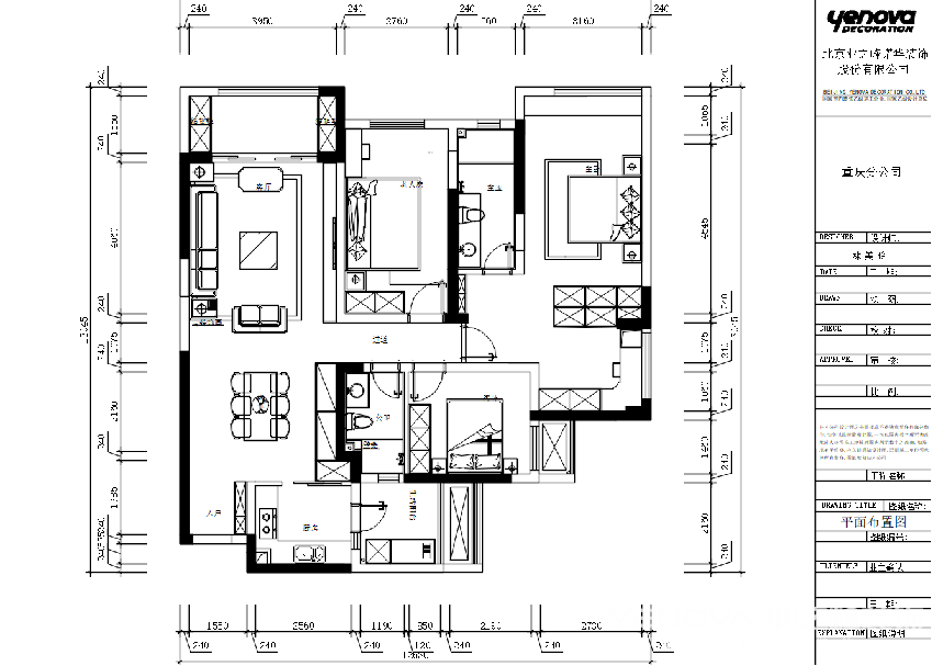
小区:碧桂园保利·云禧 面积:140㎡ 户型:三居 风格:现代简约风格
设计说明
沉稳静谧的色调令人心生平静,大地色系拼接地毯与地板相互映衬,木材温润、布艺柔软最大成都地增加收纳空间的同时,也让动线更加高效合理。
客厅






沉稳静谧的色调令人心生平静,大地色系拼接地毯与地板相互映衬,木材温润、布艺柔软最大成都地增加收纳空间的同时,也让动线更加高效合理。





