103㎡三居现代简约风格峨嵋小院
发布时间:
2021年07月29日
小区:峨嵋小院 面积:103㎡ 户型:三居 风格:现代简约风格
设计说明
现代风格。3室2厅。设计思路:三口之家,父母住同小区其他楼层,业主只需要两个卧室,所以将紧邻主卧的房间套入主卧,作为衣帽间,极大提升生活品质。业主有收藏手办的爱好,专门做了手办区,满足工作以外的精神需求。
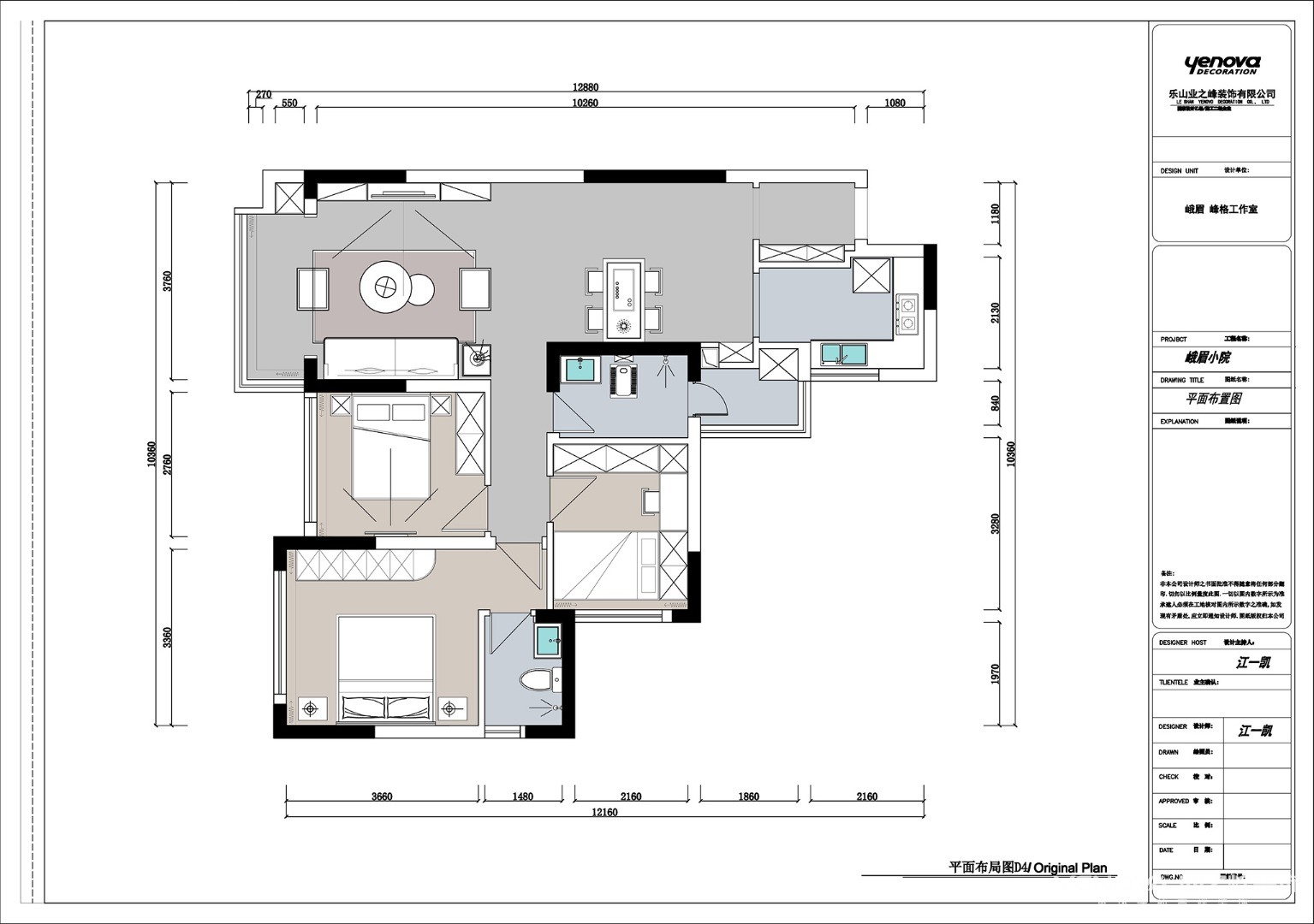
户型图

客厅





餐厅

卧室





京公安网备11010502040911