78㎡三居现代简约风格汉阳1889
发布时间:
2021年07月29日
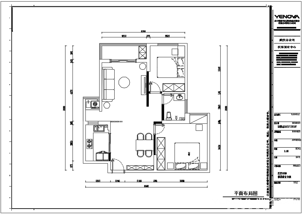
小区:汉阳1889 面积:78㎡ 户型:三居 风格:现代简约风格
设计说明
1.业主常住人口2人,需根据不同使用场景来分配及扩展储物空间;
客厅有较大的阳台,采光通风较好,但是客厅的采光相对较弱,尽可能的扩大客厅区域面积,充分利用阳台的区域
2.主卧的空间较小,摒弃其中一个卫生间作为衣帽间增加主卧收纳功能
3.充分利用卫生间空间,做干湿分离提高卫生间洗漱、入厕区域的功能化
设计说明:本案设计目的解决房间采光以及收纳问题,同时适当的分配空间,让空间的利用率得以提高,使空间的使用更加舒适,首先入户采用收纳与换鞋一体的玄关,原户型入户一眼往到头,客厅没有隐私,所以本案在过道处设计金属框透明玻璃屏风,既起到了遮挡的效果,也化解了风水问题和客厅的隐私,同时,卫生间巧妙做到干湿分离,挺高卫生间的使用率。客厅将阳台打通使客厅空间更加宽敞明亮,也使客厅更加大气,金属材质的点缀以及墙面墙布和简洁的实木线条起到了画龙点睛的作用,整体轻奢的软装搭配让空间的风格更加大气,彰显业主对舒适,优雅,时尚的生活理念。
客厅









京公安网备11010502040911