200㎡四居现代简约风格海德堡
发布时间:
2021年06月23日
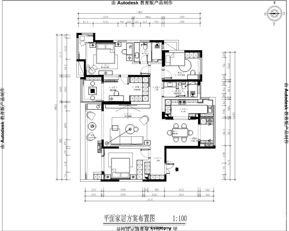
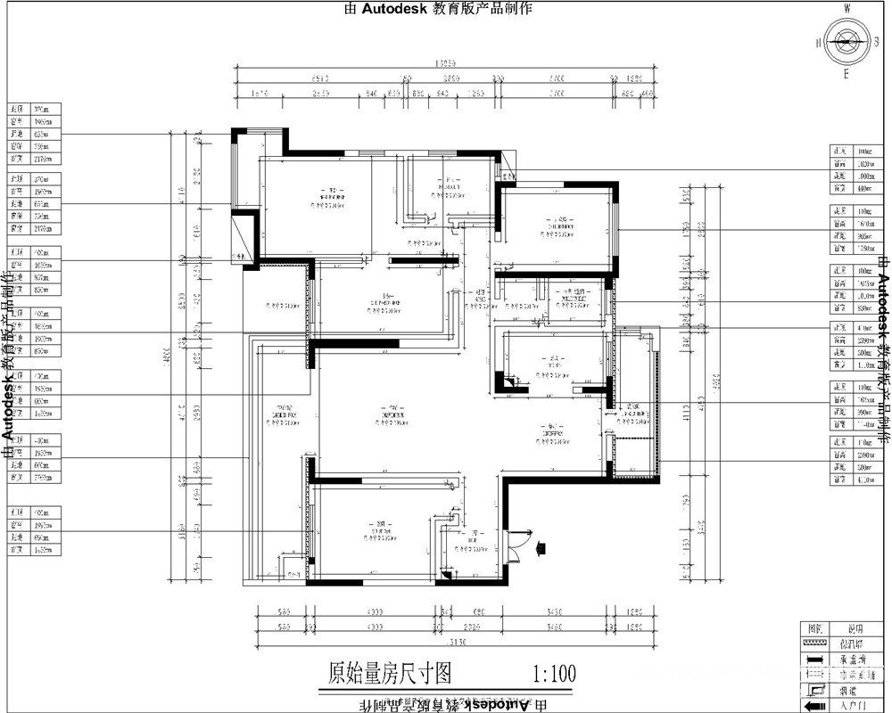
小区:海德堡 面积:200㎡ 户型:四居 风格:现代简约风格
设计说明
现代轻奢风格注重硬装修手法的简洁,但也并不像一般的简约风格那样随意。看似简洁朴素的外表之下却常常折射出一种隐藏的贵族气质,这种气质大多数通过一些精致软装元素来体现。而且,轻奢风格中常用金属线条点缀整体,金属感也正是轻奢的一大特点。低调奢华风格强调以现代与古典并重的设计原则,硬装修中强调现代设计手法,通过家具和部分软装来体现古典风格是低调奢华的重要特征。且以实用性为主,客厅的设计一定要简洁明快,凸显大气、舒适的特色。卧室的设计要温馨舒适,能缓解疲累感。厨房的设计要实用,能满足各种厨房设备的摆放和操作。
户型图

客厅




书房

卧室


餐厅






京公安网备11010502040911