80㎡二居现代简约风格白桦林居
发布时间:
2021年06月17日
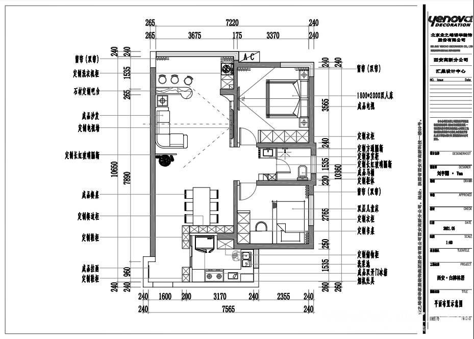
小区:白桦林居 面积:80㎡ 户型:二居 风格:现代简约风格
设计说明
建筑面积为80平方,2室2厅1厨1卫,属于平层户型,客户2口之家,喜欢很简单的黑白灰感觉,大体设计风格定义为简约,大量使用了乳胶漆营造环境,电视墙的造型结合了石材,整体营造了灰色咖色,简单的直线吊顶处理光源问题
户型图

餐厅

客厅




卧室





京公安网备11010502040911