127㎡三居现代简约风格案例库
发布时间:
2021年06月11日
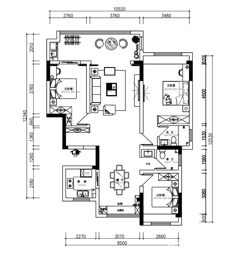
小区:案例库 面积:127㎡ 户型:三居 风格:现代简约风格
设计说明
简约不等于简单,它是经过深思熟虑后经过创新得出设计和思路的延展,不是简单“堆砌”和平淡的“摆放”,不像有些设计师粗浅的理解的“直白”,比如床头背景设计有些简约到只有一个十字挂件,但是它凝结着设计师的独具匠心,既美观又实用。
户型图

餐厅


卧室

客厅









京公安网备11010502040911