95㎡二居现代简约风格中骏宸景湾
发布时间:
2021年05月18日
小区:中骏宸景湾 面积:95㎡ 户型:二居 风格:现代简约风格
设计说明
本案以浅黄色+白色为主,又以灰色枕头、绿植点缀,黑色铁艺吊灯和吊顶线条更加干练简洁,营造含蓄,以少胜多,以简胜繁的效果,很好地满足了主人那种感性、本能和理性的空间环境需求。
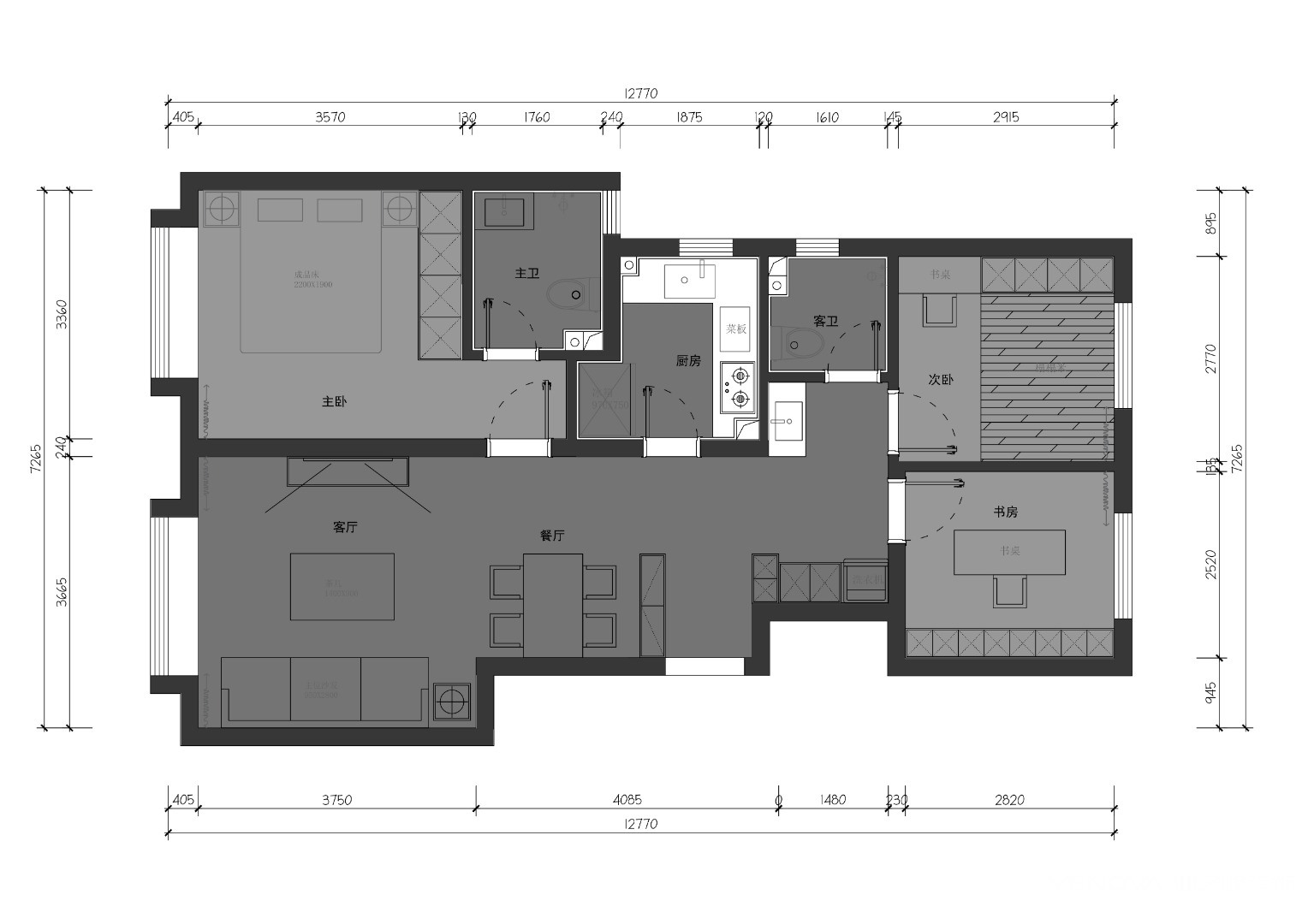
户型图

厨房

客厅




玄关

卧室

儿童房

本案以浅黄色+白色为主,又以灰色枕头、绿植点缀,黑色铁艺吊灯和吊顶线条更加干练简洁,营造含蓄,以少胜多,以简胜繁的效果,很好地满足了主人那种感性、本能和理性的空间环境需求。








