129㎡三居现代简约风格顶琇国际城
发布时间:
2021年03月03日
小区:顶琇国际城 面积:129㎡ 户型:三居 风格:现代简约风格
设计说明
业主做为一个退休老人,所以本案的设计以港湾为主题,进行深化,每个细节的处理,都为了能给客户一个更为温暖的环境。灯光的辅助效果更为整体空间的温馨指数提升了不少。当然客户的生活指数也会提升。 业主做为军人,为祖国戎马一生,正所谓“人是漂泊的船,家是温暖的岸”。 户型南北通透性较好,没有过多的空间浪费,2.75米的房屋高度也比较适合做造型吊顶,客厅的电视墙与沙发墙的长度接近,使客厅更为方正。门厅与过道相连,但长度过长,门厅应该独立出来。厨房与餐厅相邻,用餐与烹饪更为方便。主卧阳台后期可以做为晾晒区
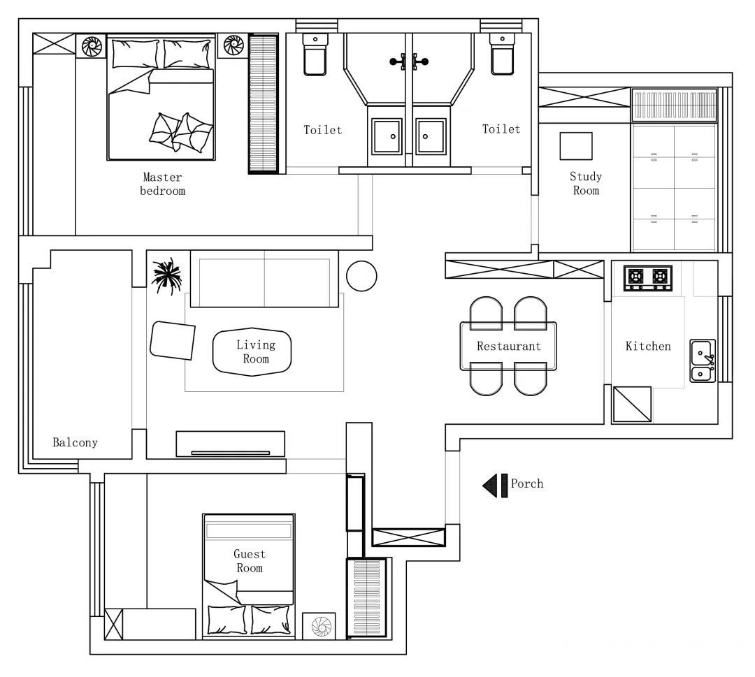
户型图

客厅



卧室


餐厅

书房

玄关





京公安网备11010502040911