120㎡三居轻奢风格鹿城一号
发布时间:
2021年02月24日
小区:鹿城一号 面积:120㎡ 户型:三居 风格:轻奢风格
设计说明
设计说明:本方案为现代轻奢风格,在设计中地面以灰色的大理石地砖铺贴而成,配上简约大方的家具,点缀一些金属质感的元素做装饰,使整个空间给人以高级优雅的感觉,实用大方,令人舒适。
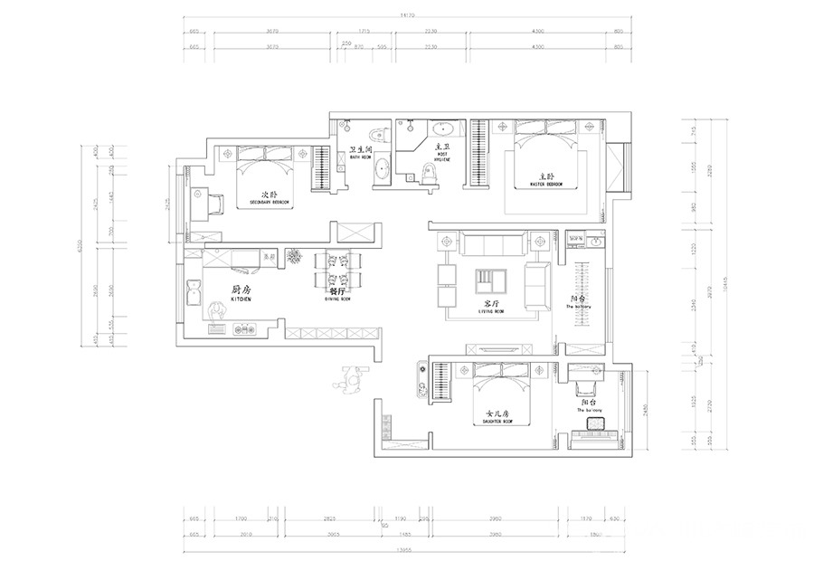
户型图

客厅





阳台


餐厅


卧室

玄关

衣帽间

设计说明:本方案为现代轻奢风格,在设计中地面以灰色的大理石地砖铺贴而成,配上简约大方的家具,点缀一些金属质感的元素做装饰,使整个空间给人以高级优雅的感觉,实用大方,令人舒适。












