205㎡三居新中式风格荣盛华府
发布时间:
2021年02月24日
小区:荣盛华府 面积:205㎡ 户型:三居 风格:新中式风格
设计说明
中式装修对于空间的划分布局都十分的合理有序。一般中式家具、饰品、颜色较深,中式讲究的是:原滋原味、和非常自然和谐的搭配。每一处空间都以美妙组合来发挥,并且以舒适的空间呈现给大家。
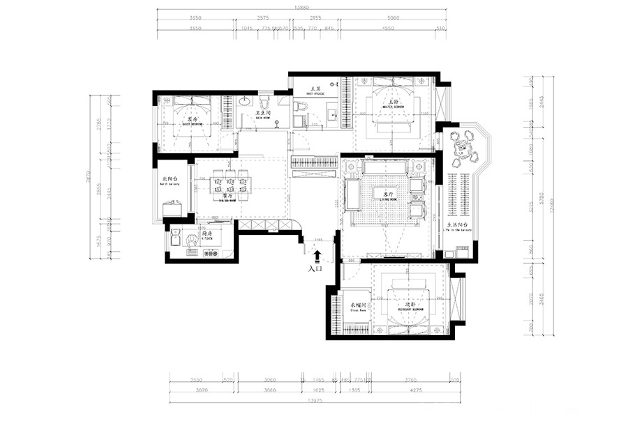
户型图

玄关

客厅



阳台

卧室


中式装修对于空间的划分布局都十分的合理有序。一般中式家具、饰品、颜色较深,中式讲究的是:原滋原味、和非常自然和谐的搭配。每一处空间都以美妙组合来发挥,并且以舒适的空间呈现给大家。







