155㎡三居现代简约风格融创中心
发布时间:
2021年01月01日
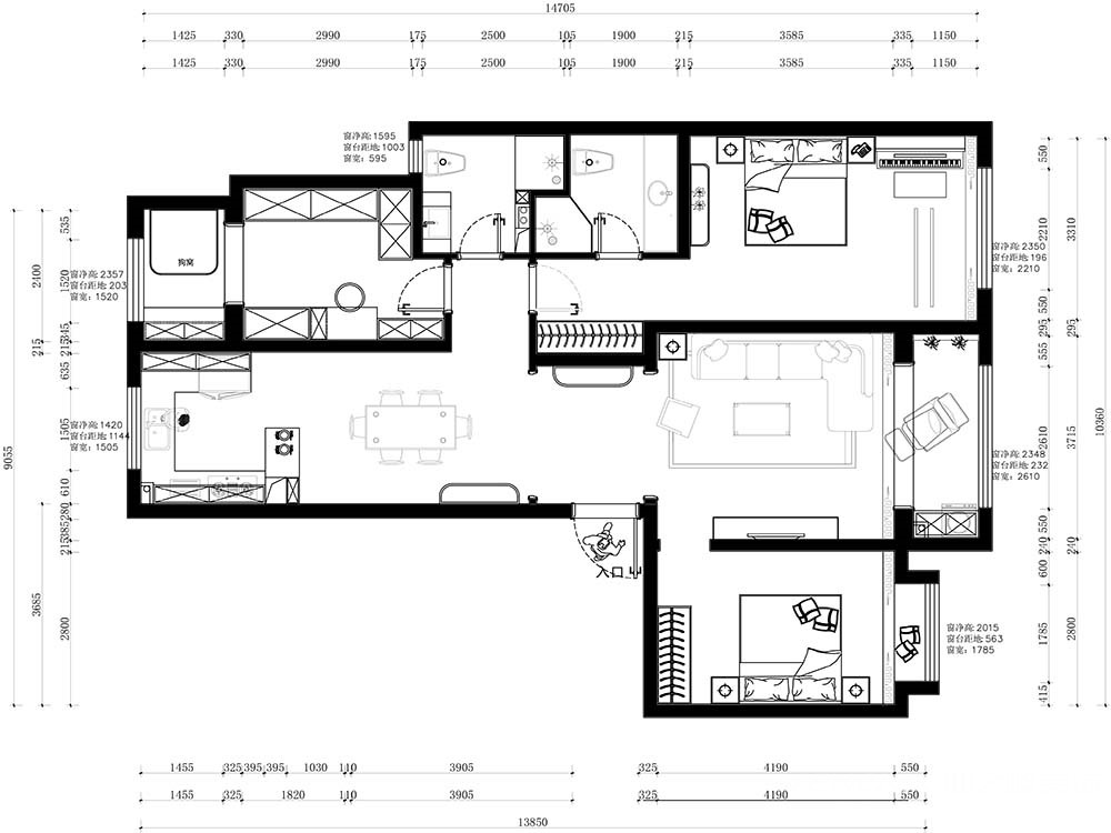
小区:融创中心 面积:155㎡ 户型:三居 风格:现代简约风格
设计说明
本套方案为现代轻奢风格,通过空间布局上的合理运用,既能在生活上满足客户的需求,现代轻奢装修风格主要特点之一,就是装修设计以高品质、简单化为理念。设计出主体简单大方,并且给人时尚、前卫、优雅,并且还会有温馨舒适的感觉。与大家比较熟悉的现代风格相比,多了几分品质和设计感;透露生活本真纯粹的同时,又融合了奢华和内涵的气质。
户型图

客厅





卫生间

玄关





京公安网备11010502040911