126㎡平层现代简约风格鸿锦城罗曼尼
发布时间:
2020年12月22日
小区:鸿锦城罗曼尼 面积:126㎡ 户型:平层 风格:现代简约风格
设计说明
本案的业主对原始的户型很满意,所以我们在不拆改的情况下,对户型进入深入的研究,使各个空间的功能划分更为明确,设计上,整体风格文艺,素雅,显示出业主对生活的品质,造型上面,墙面,顶面并没有设计复杂的造型,打造出极简的美,墙地面的色彩上以白色及灰色调为主,用简单的家具颜色进行跳色的处理,使整个空间的色彩更加饱满,采光效果更好,空间也会显得更加整端和宽敞。
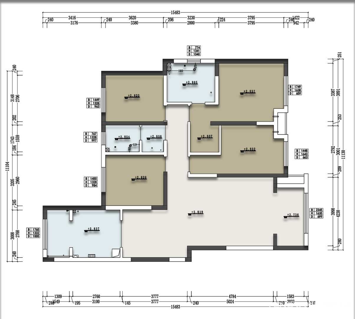
户型图

客厅




儿童房

卧室

餐厅





京公安网备11010502040911