135㎡四居混搭风格保利狮子湖
发布时间:
2020年12月22日
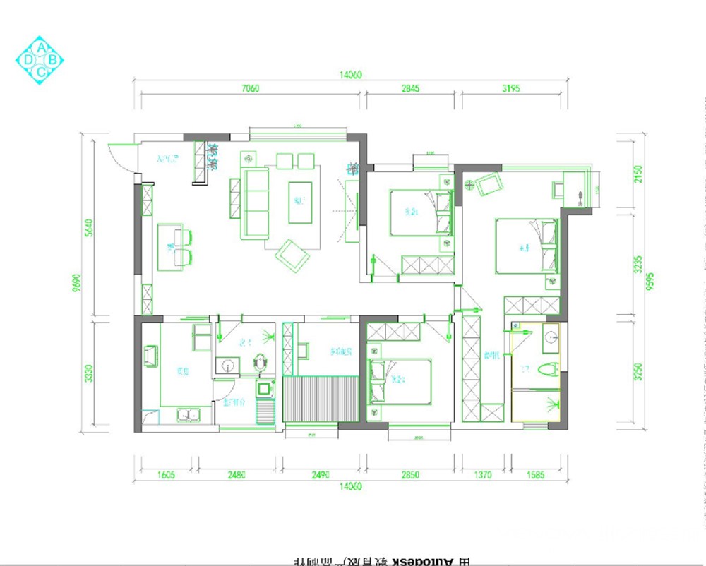
小区:保利狮子湖 面积:135㎡ 户型:四居 风格:混搭风格
设计说明
本案例的屋主为一个单身男士平时一个人居住,这个房子是父母买给他作为结婚后的住所。户型比较方正,所以在改造上较少,并且由于面积不是很大,所以这种客户很多都想装修最后呈现的效果是比原户型更大气一些的,风格也不会复杂,大多以简洁为主。做开放式厨房就很好解决小户型的这个弊病。加上设计成无主灯的方式,空间看上去也会更简洁,更有质感。房间布局考虑父母偶尔会来住一下,以及婚后的小孩房+一个书房。
户型图

客厅


卧室

餐厅





京公安网备11010502040911