225㎡别墅美式风格融创观玺台
发布时间:
2020年12月22日
小区:融创观玺台 面积:225㎡ 户型:别墅 风格:美式风格
设计说明
本案为成都业之峰装饰的古典美式风格案例,业主的第二套房,体验从现代生活到古典美式的转变。客厅的面积比较大,配合整体的效果,整体深浅对比,通过家具及软装的搭配使得空间更加饱满也更加有生活的味道。
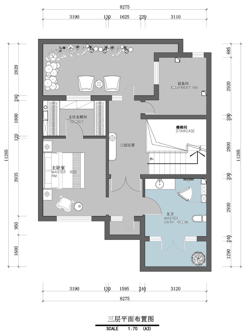
户型图

餐厅

书房

卧室


客厅




本案为成都业之峰装饰的古典美式风格案例,业主的第二套房,体验从现代生活到古典美式的转变。客厅的面积比较大,配合整体的效果,整体深浅对比,通过家具及软装的搭配使得空间更加饱满也更加有生活的味道。








