118㎡四居现代简约风格保利香槟国际
发布时间:
2020年12月22日
小区:保利香槟国际 面积:118㎡ 户型:四居 风格:现代简约风格
设计说明
家是心灵的港湾,现代简约风格以简洁的表现形式来满足人们对空间环境那种感性的、本能的和理性的需求,这是当今国际社会流行的设计风格——简洁明快的简约主义。而现代人快节奏、高频率、满负荷,已让人到了无可复加的接受地步。人们在这日趋繁忙的生活中,渴望得到一种能彻底放松、以简洁和纯净来调节转换精神的空间,这是人们在互补意识支配下,所产生的亟欲摆脱繁琐、复杂、追求简单和自然的心理。
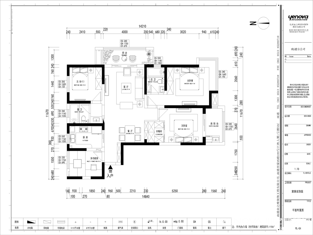
户型图

餐厅

客厅


卧室





京公安网备11010502040911