91㎡三居现代简约风格白云园
发布时间:
2020年12月22日
小区:白云园 面积:91㎡ 户型:三居 风格:现代简约风格
设计说明
忙碌的工作日中。遇见这对有爱的年轻夫妻。
见面沟通测量越聊越投机。原本是在其他区域游更大的面积房子居住。但是考虑小朋友的上学学区。所以。把之前的父母的老房子重新烦心装修。业主本身就对从小生活的居住所有很深的感情。老的物件怎么才回让新的时代更加融合接受呢?这是我们一直沟通的话题。最终,我们定义为简约风。再去掉原有老房子的 多层次的木饰面装修及吊顶,换做清爽的油漆调色。家具也以简约的形式。去做空间的点缀。三次面谈收稿。客户也满意。
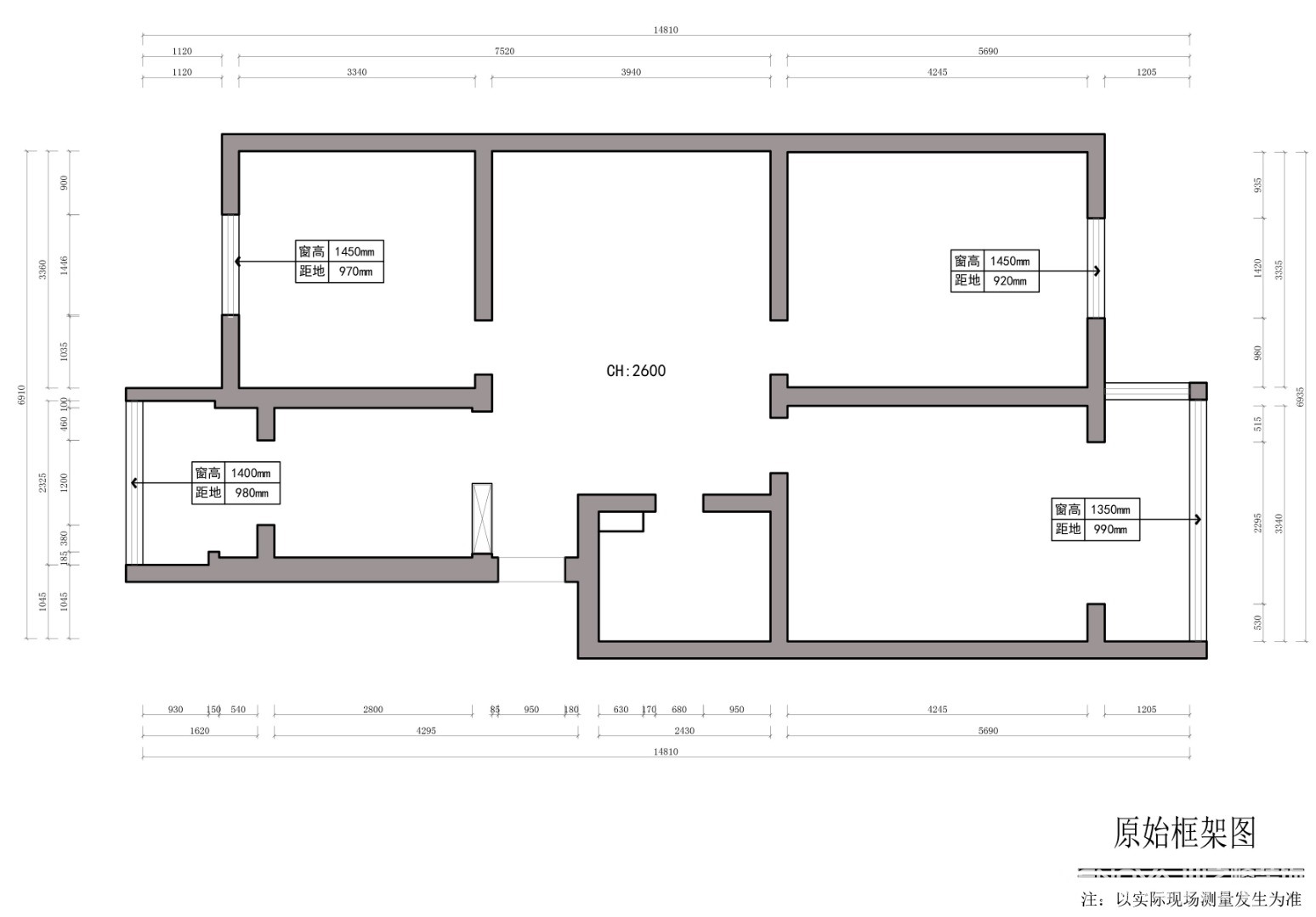
户型图

餐厅


卧室


玄关

客厅







京公安网备11010502040911