98㎡三居现代简约风格珑熙郡
发布时间:
2020年12月20日
小区:珑熙郡 面积:98㎡ 户型:三居 风格:现代简约风格
设计说明
本案风格为现代简约,90平的套三单卫,因厨房较小,我们把生活阳台和厨房打通,把洗衣机嵌入橱柜台面下,使得厨房空间更加合理实用,墙面局部使用金属线条以及木质墙板作为点缀装饰,提亮整个空间。
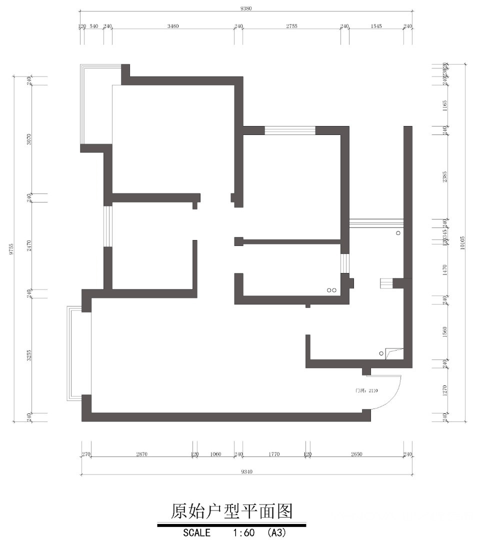
户型图

卧室

客厅



本案风格为现代简约,90平的套三单卫,因厨房较小,我们把生活阳台和厨房打通,把洗衣机嵌入橱柜台面下,使得厨房空间更加合理实用,墙面局部使用金属线条以及木质墙板作为点缀装饰,提亮整个空间。




