82㎡二居现代简约风格绿地GIC
发布时间:
2020年12月10日
小区:绿地GIC 面积:82㎡ 户型:二居 风格:现代简约风格
设计说明
男主人为IT青年,喜欢收藏小型手办模型;女主人性格温和恬静,喜欢做甜品烹饪。对现代简约风格的黑白灰情有独钟,同时希望增添原木材质,让空间不失柔和温馨。从设计的角度考虑,摈弃掉黑白灰中的黑色元素,由大面积的原木材质代替,让整体色调更和谐,也更加柔和。
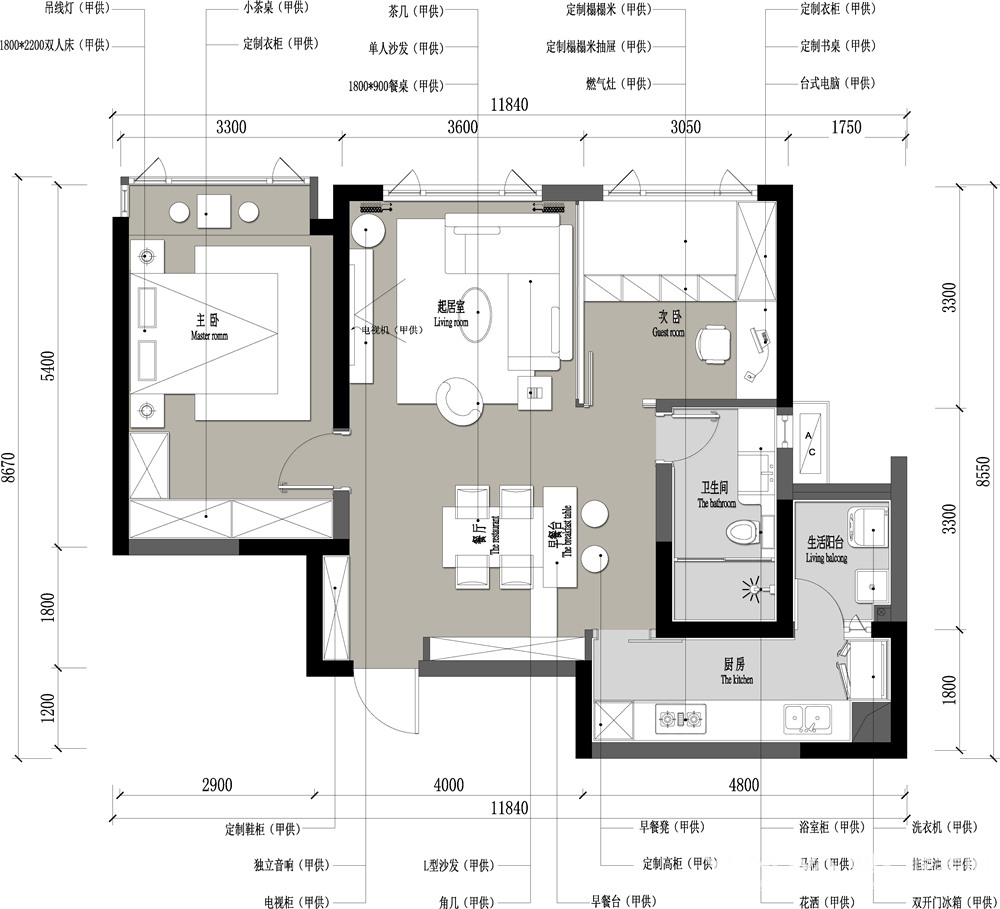
户型图

客厅


卧室





京公安网备11010502040911