96㎡三居现代简约风格海伦湾
发布时间:
2020年12月08日
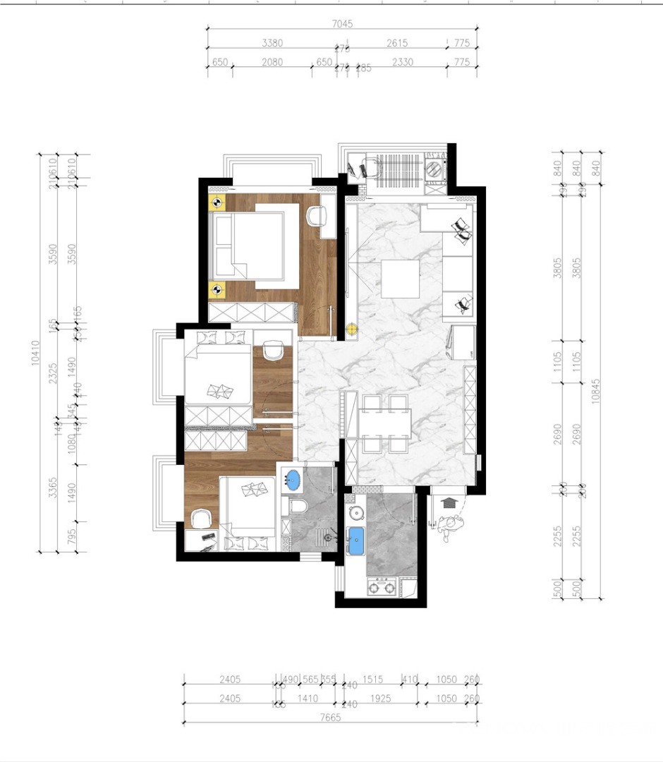
小区:海伦湾 面积:96㎡ 户型:三居 风格:现代简约风格
设计说明
本套装修案例为洋房,三室两厅一卫。原始结构优缺点:卧室采光度都非常优越,但是在空间储物上还是拥挤。
本套96平,围绕现代为主题,简约中求艺术,简约并不是缺乏设计要素,它是一种更高层次的创作境界。在室内设计方面,不是要放弃原有建筑空间的规矩和朴实,去对建筑载体进行任意装饰。而是在设计上更加强调功能,强调结构和形式的完整,更追求材料、技术、空间的表现深度与精确。
户型图

客厅





餐厅

儿童房

卫生间

卧室





京公安网备11010502040911