139㎡四居现代简约风格吉源·美郡国际城
                  发布时间:
                  2020年11月17日
                
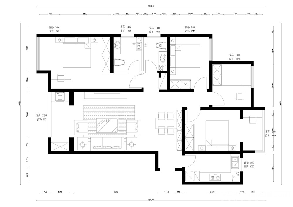
 小区:吉源·美郡国际城 面积:139㎡ 户型:四居 风格:现代简约风格
设计说明
 户型的优点:原始户型南向阳台采光较好,休闲区域较大,方便生活。
户型的缺点:没有独立餐厅,玄关区域狭小。
入户没有玄关走廊,但在餐桌旁边放置了餐边柜,起到了玄关柜的作用,大理石加上金属元素的餐桌,搭配造型独特的沙发,显得非常大气。
客厅和餐厅一体,这样看起来非常宽敞,又能够让侧方的两个窗户的光线连通起来,明亮又大方。
在色彩选择上,选用带有高级感的中性色,诸如驼色、象牙白、奶咖、黑色及碳灰色,来演绎一种“低调的奢华”,令空间质感更为饱满。
户型图
 
卧室
 
客厅
 



儿童房
 

 


京公安网备11010502040911