120㎡三居现代简约风格招商依云曲江
发布时间:
2020年11月06日
小区:招商依云曲江 面积:120㎡ 户型:三居 风格:现代简约风格
设计说明
现代人追求个性,追求时尚不止表现在服装化妆上,也慢慢延伸到家居装修上,个性、设计感、流行趋势,无不体现着后现代风格的特点。后现代设计风格是感性和理性,大众和个性,传统和现代相结合的家装设计,也是现代人深受喜爱的家装风格。
业主简介:本次方案的户型是一百多平,中间楼层。客户是一对年轻夫妻,男主人是个IT,平时上班较忙,希望
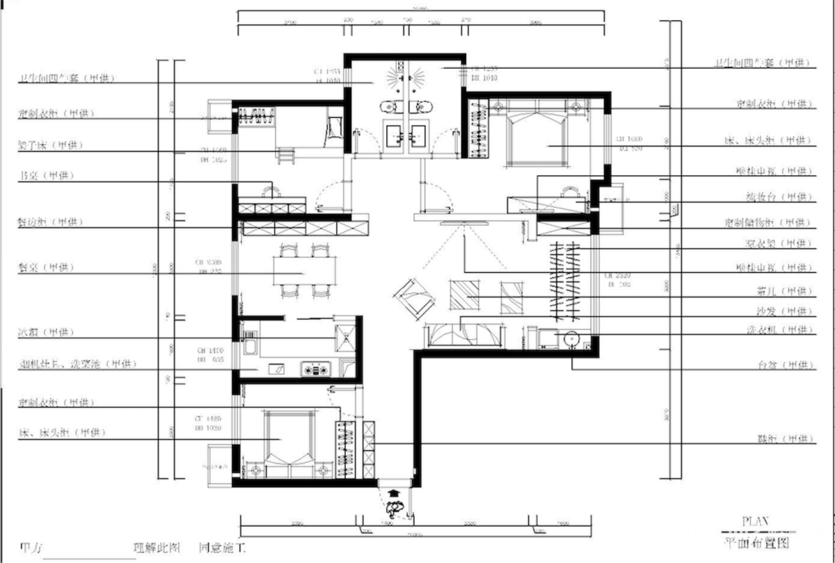
户型图

客厅



餐厅

儿童房

卧室





京公安网备11010502040911