115㎡三居现代简约风格南湖意境
发布时间:
2020年10月24日
小区:南湖意境 面积:115㎡ 户型:三居 风格:现代简约风格
设计说明
客餐厅1:现代简约风格以灰白黑为主色调,搭配上充满个性的吊灯,显得简约而不简单。
客餐厅2:简单大气的同时,没有很复杂的空间分布,不论哪里都是干净整齐。
客餐厅3:整体明亮通透,整体色调淡雅自然。大理石纹路的地砖和电视柜的木饰面相互呼应,柔和又温馨
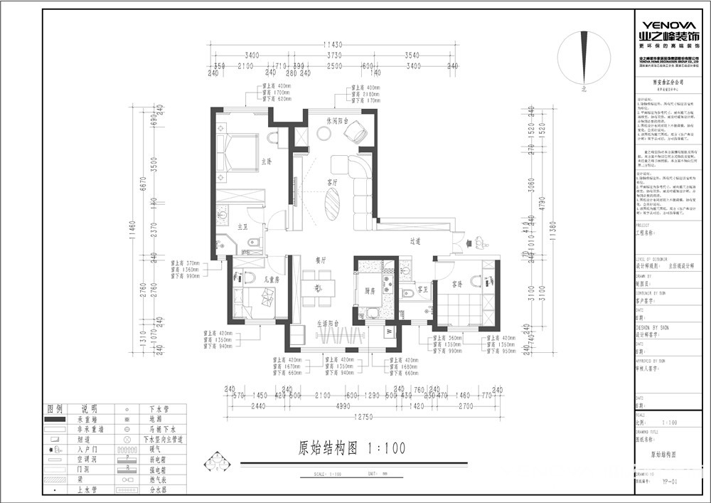
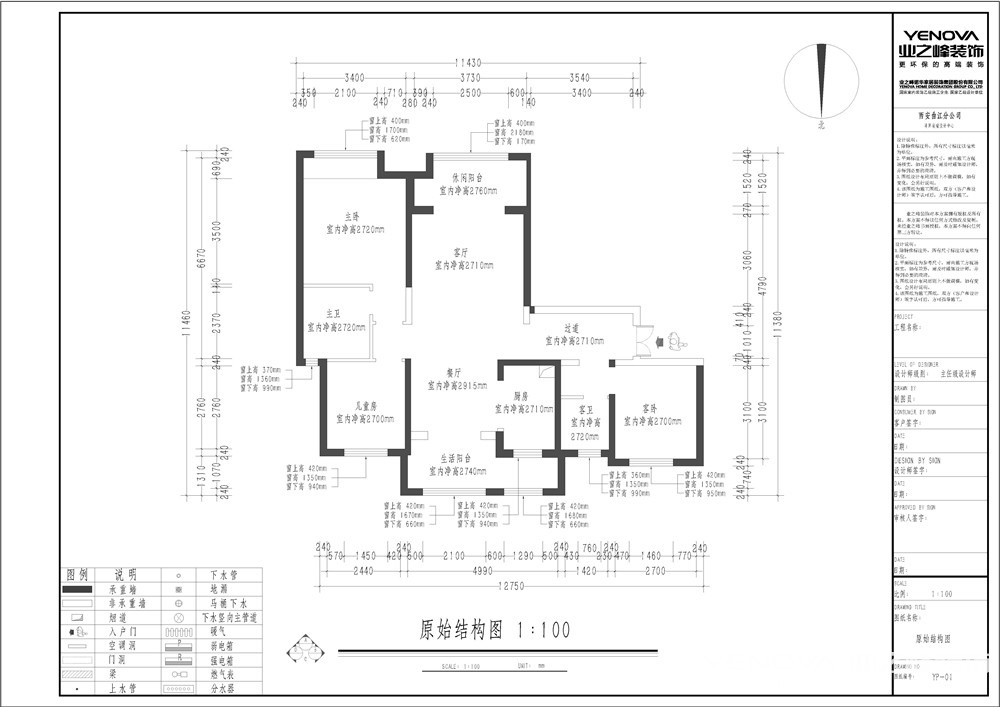
户型图

餐厅

客厅




卧室

书房





京公安网备11010502040911