142㎡三居现代简约风格海信花街小镇
发布时间:
2020年10月18日
小区:海信花街小镇 面积:142㎡ 户型:三居 风格:现代简约风格
设计说明
本案业主是位时尚的女性,非常喜欢现代轻奢风格的优雅简洁,在设计时充分利用空间,但又不把家里做满,每个功能分区都得到合理利用,客厅与餐厅功能南北贯通,动线明确,餐厅做了岛台与西厨操作台,方便日后朋友小聚、做简餐、插花、手工等。主卧室将原有衣帽间打开,最大化的优化动线与视觉效果,既增加了储物空间、又能卧室与衣帽间联动,生活中的每一个场景都应付自如。
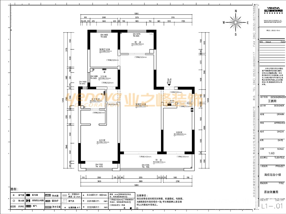
户型图

客厅




餐厅

卧室






京公安网备11010502040911