150㎡三居现代简约风格汇锦庄园
发布时间:
2020年10月18日
小区:汇锦庄园 面积:150㎡ 户型:三居 风格:现代简约风格
设计说明
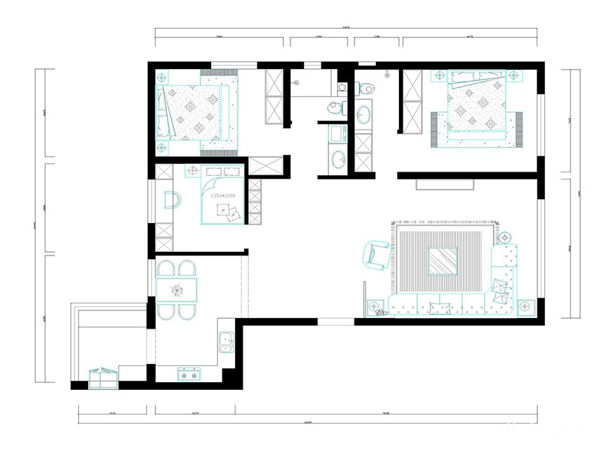
150㎡+现在简约,本方案是围绕现代简约为主题,以港式为格调,那里面透着一股对精致生活的理解和尊重。针对硬装的冷静色彩和简洁线条,我们选取了一些中性偏暖的低频率家具、饰品去协调整个家居格调,使其柔和温馨。这种横向的客餐厅布置,在纵横有致的分布中,将空间感受扩大了近一倍使人在推门即入的玄关处,便能感受到深邃的吸引力。通过色块,灯光,利用点、线、面,穿插的设计手法来打造餐厅氛围,户型图 
卧室



客厅




玄关








京公安网备11010502040911