140㎡三居现代简约风格中建昆明澜庭
发布时间:
2020年09月22日
小区:中建昆明澜庭 面积:140㎡ 户型:三居 风格:现代简约风格
设计说明
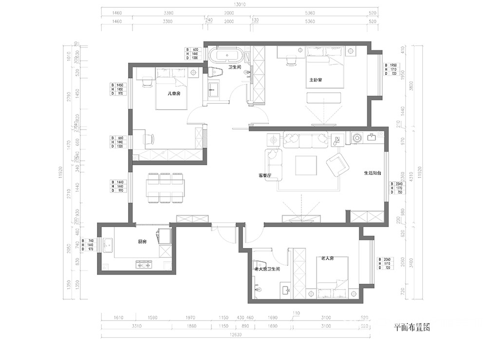
户型的优点:通透平整。有利于空间分割,室内面积利用率高。
户型的缺点:户型进深过小,开间大,不利于室内保温,浪费能源,主卧室空间过大,浪费能源。
户型图

餐厅

儿童房

卧室

客厅



户型的优点:通透平整。有利于空间分割,室内面积利用率高。
户型的缺点:户型进深过小,开间大,不利于室内保温,浪费能源,主卧室空间过大,浪费能源。






