140㎡四居现代简约风格恒大天府半岛
发布时间:
2020年09月22日
小区:恒大天府半岛 面积:140㎡ 户型:四居 风格:现代简约风格
设计说明
客厅充满极简主义色彩,低调内敛的黑、白、灰相互衬托下,使得整个空间呈现出高质感的魅力,搭配香槟金色和橙色,打破了空间的沉闷气息,形成了极强的视觉冲击力,让整个设计具有脱俗的品位,时尚、沉稳却又十分时尚的空间感,客厅与阳台打通后,变得非常敞亮,整个公共领域变宽敞了,次卧区域加入了书房功能,灰系与木饰贯穿空间,与良好的自然光照相映,平衡着整个空间的调性,同时也平衡着理性的生活方式,一面藕灰白色床头背景墙静谧十足,与空间的灰白色营造出层次感,橙色窗帘则为点睛之笔,将温暖的主题延伸到家中每一处.
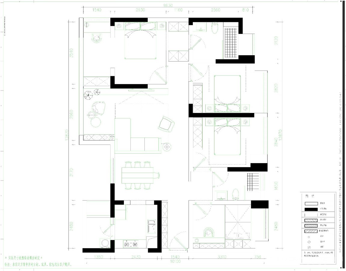
户型图

客厅


卧室


卫生间





京公安网备11010502040911