78㎡三居现代简约风格首创爱这城
发布时间:
2020年09月15日
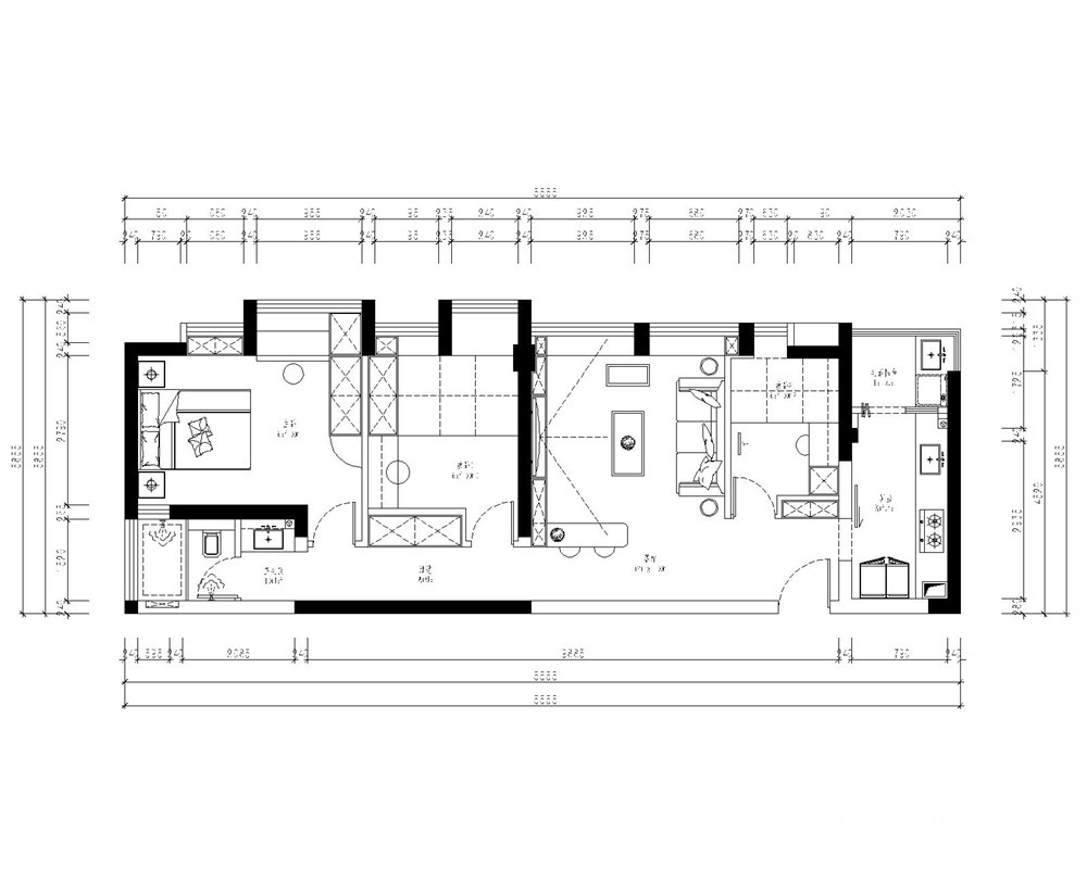
小区:首创爱这城 面积:78㎡ 户型:三居 风格:现代简约风格
设计说明
本案例是ins风格,其风格往往色调饱和度较低,整体偏向清新干净。ins风在家居设计中,以北欧简约风家具为基调,辅以设计感与调性的配饰物件,形成独特的家居风格。入口玄关运用了淡粉色搭配原木色地板,客厅中灰色布艺沙发、圆弧形状设计还多了一丝俏皮感。以植物花卉作为空间隔断,点缀了空间的设计,也起到了隔离空间的作用,让业主在浪漫温馨的空间氛围中很好的体验,呈现出一种安逸、宁静的氛围。卧室中整体基调偏冷淡,没有多余的跳跃色彩,床头墙面用装饰画点缀端景,利用简约装饰品来丰富空间氛围,打造就寝空间的浪漫氛围。
户型图

客厅



玄关

休闲区





京公安网备11010502040911