105㎡三居现代简约风格观城
发布时间:
2020年09月15日
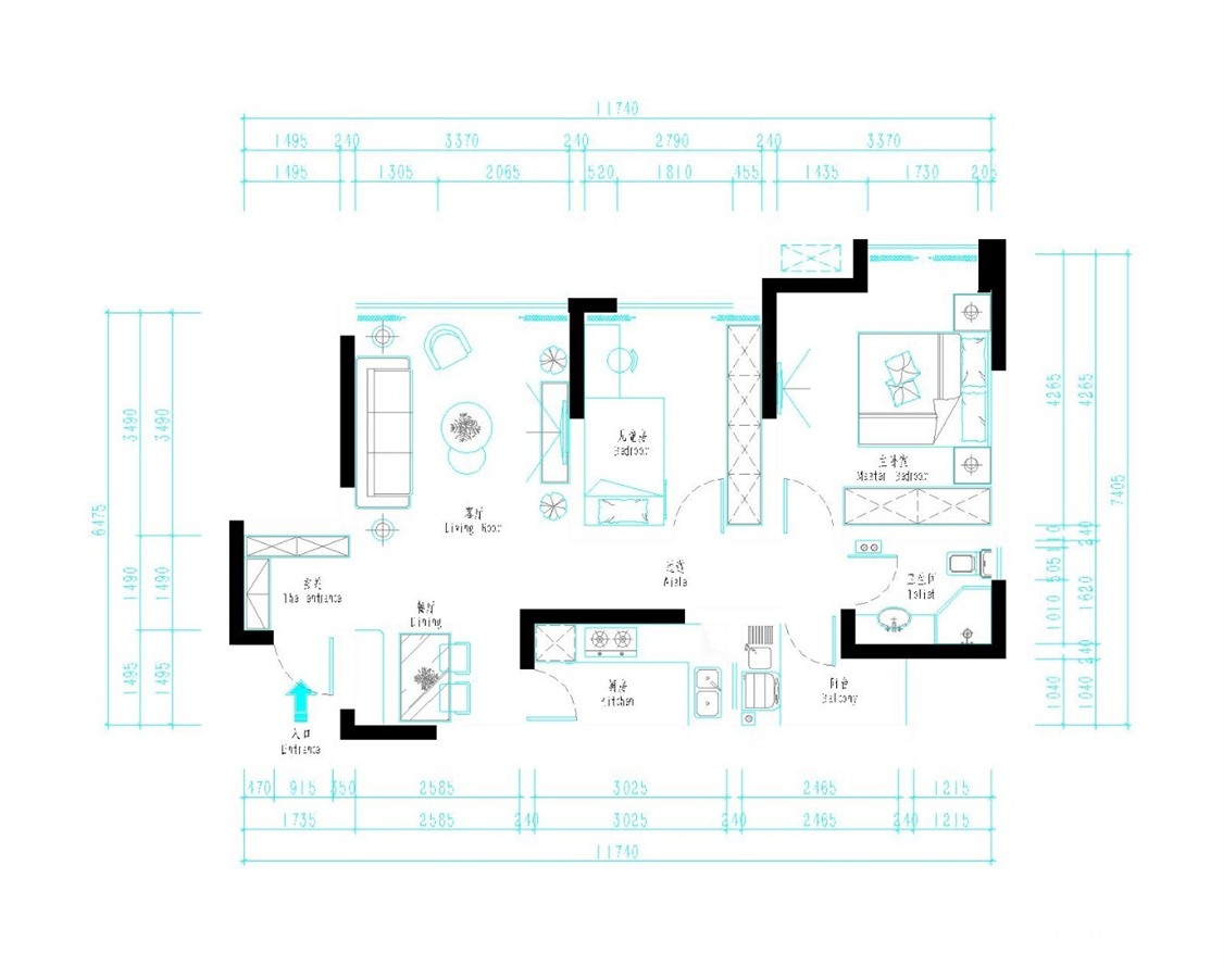
小区:观城 面积:105㎡ 户型:三居 风格:现代简约风格
设计说明
本案例摒弃了繁华的装饰,整体采用明快的色调设计,风格上结合新美式家具配合美式文化元素,从复杂到简单,从整体到局部,每个地方都显得干净利落,打造个性品味的生活态度。整体设计上给人带来清爽明快之感,宽敞的空间布局让人更加舒畅,单一的色调让人就看不腻。空间布局、色彩用用、材质的选择,都突出了简约又大气的风格。以宁静的淡蓝色为空间主色调,辅以深蓝色的床靠背软包,家居的卧室布置较为温馨,作为主人的私密空间,主要以功能性以及实用舒适为斟酌的重点,整体空间给人感觉明亮而恬静,搭配温和的木地板,舒适感倍增。
户型图

儿童房

卧室

客厅






京公安网备11010502040911