119㎡三居现代简约风格大名城
发布时间:
2020年08月23日
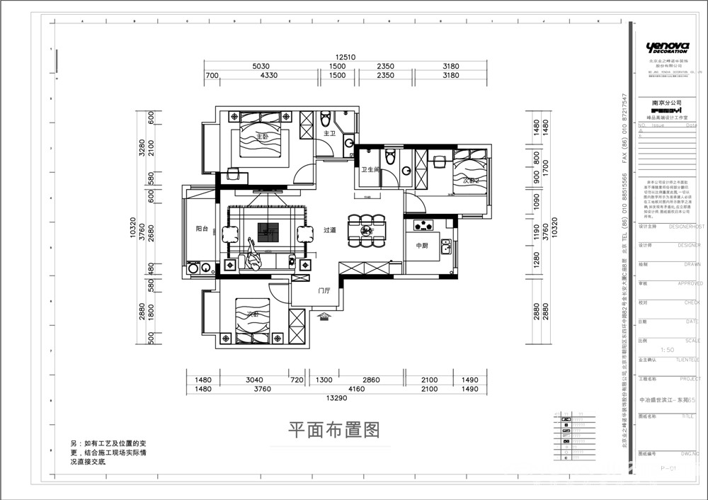
小区:大名城 面积:119㎡ 户型:三居 风格:现代简约风格
设计说明
此户型一家三口居住,目前是女儿一个人居住,客户喜欢现代风格,不喜欢复杂的背景,以极简为主,墙面不做任何装饰,卧室用墙布,地面用大砖铺贴,客厅沙发用灰色布艺沙发加原木,门用原木木门做与西厨橱柜颜色相呼应。整个空间很宽敞大气。
主卧室用墙布,地面用原木色地板,梳妆台和床头柜用白色相呼应。与客厅色调统一。次卧室,做嵌入式衣柜,空间格局与色调一直,,儿童房,衣柜橱柜梳妆台一体定制,柜体板侧面用原木色,柜门门板用白色加隐形拉手。整个空间突出强调所有家居设计陈列都以最简单的方式呈现,并取消很多复杂的东西。从而使室内室外宽敞明亮,线条和色彩单一而不缺乏趣味。
户型图

客厅



卧室







京公安网备11010502040911