220㎡四居现代简约风格保利心语花园
发布时间:
2020年07月25日
小区:保利心语花园 面积:220㎡ 户型:四居 风格:现代简约风格
设计说明
本案是保利心语花园220㎡户型,属于业主改善性住房,男业主35岁,金融行业大咖,女业主33岁,科研工作,因为本身的工作的严谨,对整体风格以及空间利用要求较高,在每个空间都运用了垂直水平的线条分割,上下左右,如音乐的韵律在五线谱上跳跃一般,凝视他们,你就会发现宇宙中直达心底,最质朴的美。
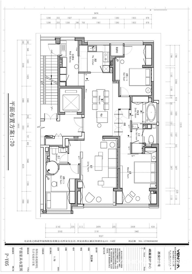
户型图

客厅










卫生间



卧室




餐厅


厨房






京公安网备11010502040911