120㎡三居现代简约风格天纵城
发布时间:
2020年07月24日
小区:天纵城 面积:120㎡ 户型:三居 风格:现代简约风格
设计说明
简单的线条,简单的组合,在设计上尽量追求简洁,室内空间朴素、大方,但其功能性强。从细节上来说,即物品的摆放要整洁,装饰的物品要少,在颜色和布局上来说,颜色的种类用的不太多,布局更大方,格调更简洁、素雅。
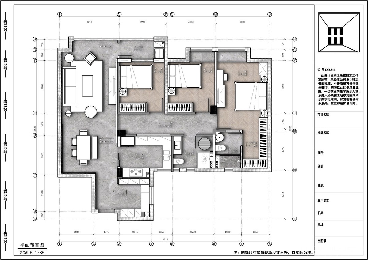
户型图

客厅




餐厅

玄关

简单的线条,简单的组合,在设计上尽量追求简洁,室内空间朴素、大方,但其功能性强。从细节上来说,即物品的摆放要整洁,装饰的物品要少,在颜色和布局上来说,颜色的种类用的不太多,布局更大方,格调更简洁、素雅。






