140㎡三居现代简约风格九龙仓御园
发布时间:
2020年07月22日
小区:九龙仓御园 面积:140㎡ 户型:三居 风格:现代简约风格
设计说明
本案业主非常年轻,还没有结婚,在选择装饰公司的时候也非常谨慎,在前期考察的时候很仔细,方案布局上及报价上都非常在意,但在我们设计完后得到了客户的高度认可,在布局上面我们设计了中西厨房及岛台,在空间上就会显很大,颜色方面业主因为比较年轻所以还是喜欢以灰色为主的现代风格,所以地面砖用的灰色大板砖,墙面为浅灰色墙布,使整个空间看起来低调并高档。再配上金属的装饰线条使整个空间轻奢味非常十足。整个效果业主非常满意。
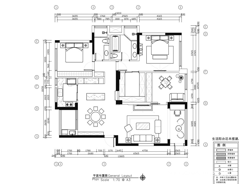
户型图

卧室

休闲区

客厅






京公安网备11010502040911