128㎡三居现代简约风格绿地中央广场
发布时间:
2020年06月20日
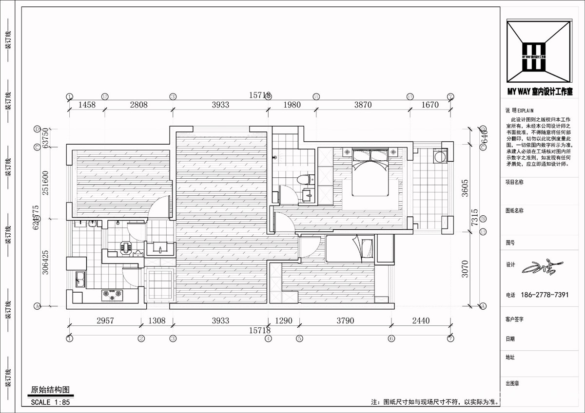
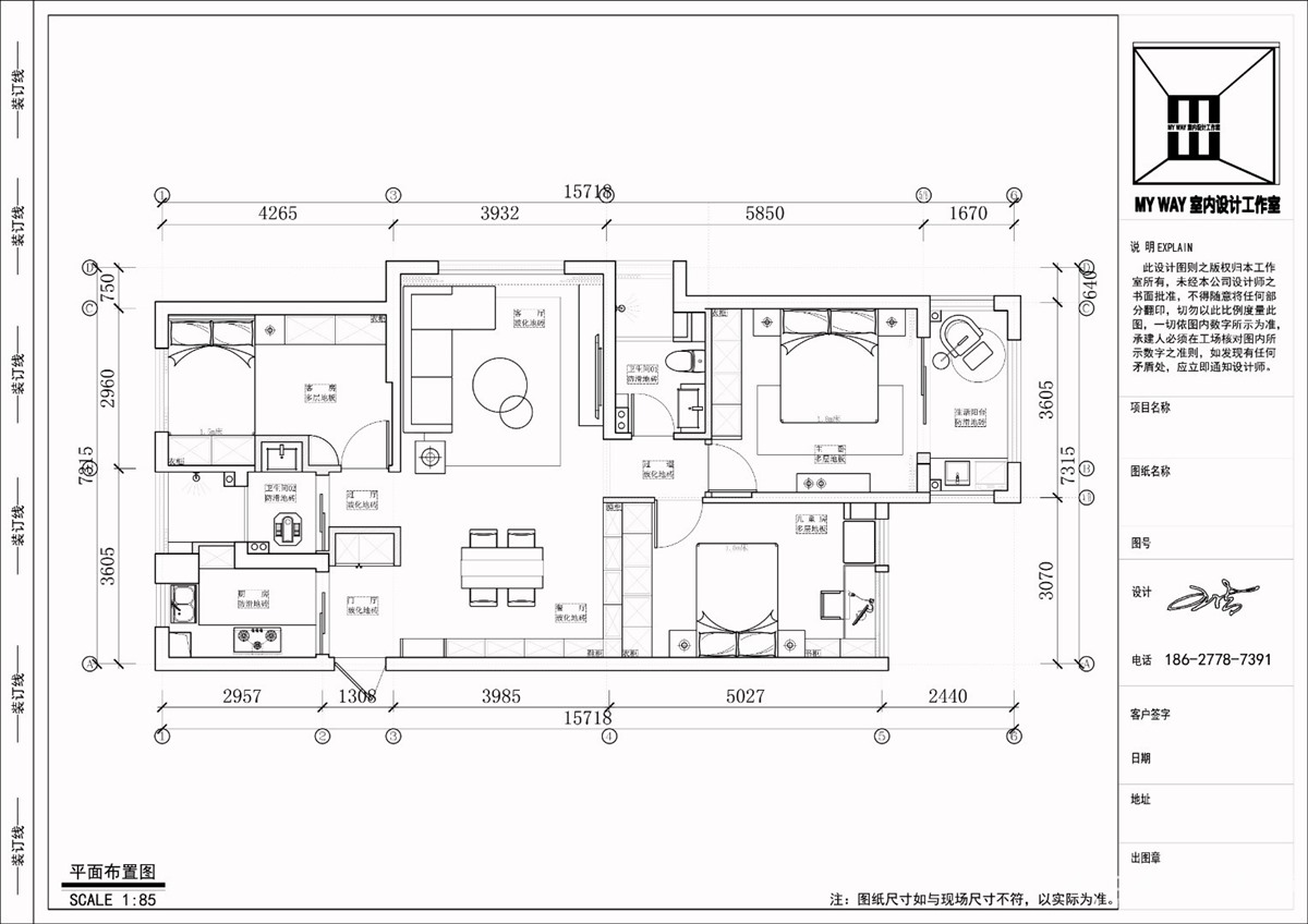
小区:绿地中央广场 面积:128㎡ 户型:三居 风格:现代简约风格
设计说明
根据客户的需求及房屋的特点,现代风格的居室重视个性和创造性的表现,即不主张追求高档豪华,而着力表现区别于其他住宅的东西。住宅小空间多功能是现代室内设计的重要特征。让整个家庭的人在公共区域停留更多的时间 家人之间的交流相处时间是本案例想要通过设计为其增彩的。
黑白永远是最经典的颜色。看起来整个空间简单、舒适,整个立体形式都与有条不紊的、有节奏的曲线融为一体。以简洁的造型、完美的细节,营造出时尚前卫的感觉。
户型图

餐厅

客厅







京公安网备11010502040911